立即预约 立即预约
免费定制整装家居

免费定制整装家居

一站置家 全程无忧 一省到底
hide.png

当前位置: 首页 > 装修案例效果图 > 中海康城

中海康城 205平 中式风格效果图

收藏
案例风格 中式 案例户型 三居 案例面积 205平米
楼盘名称 中海康城 设计师 林凤设计师 案例类型 改善性住宅

设计理念:本案设计主题为山水入梦,古色古香的木线制作,搭配着山水装饰风画正所谓是遥看那年那花那岁月。

客厅
第1张
第2张
餐厅
第1张
第2张
卧室
第1张
卫生间
第1张
第2张
厨房
第1张
书房
第1张
门厅
第1张
过廊
第1张
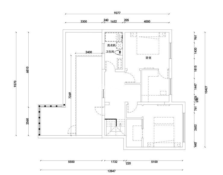
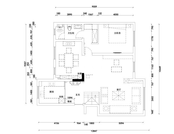
户型图
第1张
第2张
  • 案例详情

中海康城-205平-中式风格-沙发背景墙.jpg 中海康城-205平-中式风格-客厅角度二.jpg

客厅与书房的墙打开,让整个本来拥挤的视觉感觉变得宽敞大气,由于房主是在互联网上班的成功人士,其生活习惯是不看电视,所以电视的摆放可以不用墨守常规,沙发背景墙为聚宝盆的风水装饰画,象征着财源滚滚。

中海康城-205平-中式风格-餐厅角度二.jpg 中海康城-205平-中式风格-餐厅.jpg

天花羊皮纸格栅点缀着原本单调的棚顶,使其与背景墙木作花角花开富贵搭配的更为和谐,加上餐边酒柜的摆置,形成了从繁到简的这样中国文化。

中海康城-205平-中式风格-卧室.jpg

主卧室主要体现出整洁干净,墙面采用白色乳胶漆,床头背景墙则为传统中式元素极为浓郁的花,鸟及万字格花角。

中海康城-205平-中式风格-一层卫生间.jpg 中海康城-205平-中式风格-二层卫生间.jpg

卫生间干净整洁大方,腰线的使用恰好让卫浴空间不是那样的素面朝天。

中海康城-205平-中式风格-厨房.jpg

厨房由实木门板定制,低调而又内涵满满。

中海康城-205平-中式风格-玄关.jpg 中海康城-205平-中式风格-玄关.jpg 中海康城-205平-中式风格-过廊.jpg 中海康城-205平-中式风格-二层平面布置.jpg 中海康城-205平-中式风格-一层平面布置.jpg

案例设计师

林凤设计师

设计师:林凤设计师

从业时间:10年

设计理念:

预约设计师

算算你家装修多少钱

报名即享丰厚赠品,品质装修

免费报价
咨询热线:400-656-9909
20190221103704574636.jpg

精品设计案例

20180612134930523248.jpg 服务号二维码.jpg