立即预约
免费定制整装家居
一站置家 全程无忧 一省到底
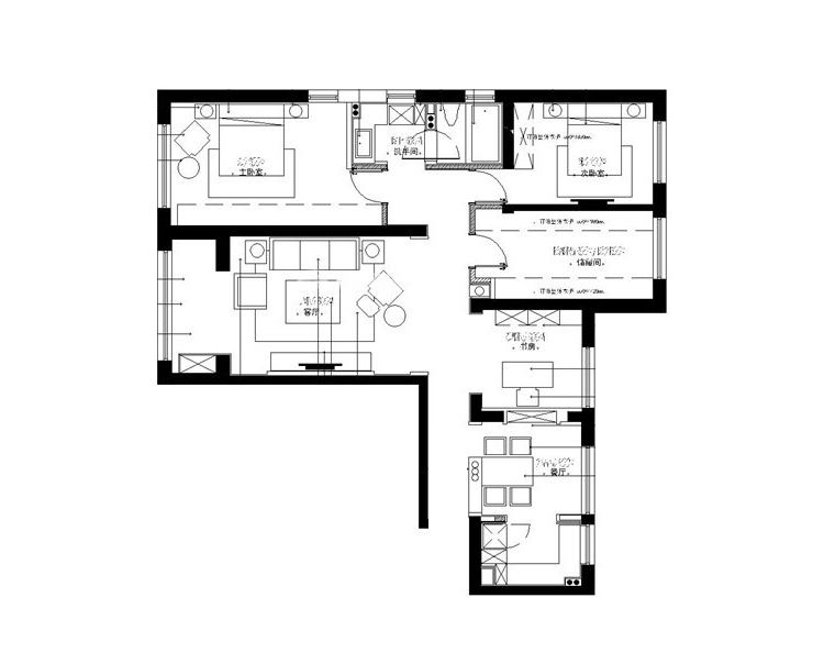
设计理念:本案为现代风格装修,它以米色、鸡翅木色主色调,加上理石造型石材,镜面车边为装饰元素。整体设计明亮温馨,低调奢华,凝聚着一个温馨浪漫的家。
案例详情
地面白色地砖,帝王金收边,啡网文石材紧随之后,地面变得丰富多彩,墙面多米色壁纸,过廊区域护墙板,横缝造型,背景墙洞石加上竖缝车边境,横竖结合,变化不一,镜子的使用让空间更开阔。洞石洞察世间万物之意。
餐厅、厨房、门厅相互结合,相互链接,你中有我,我中有你。木色饰面的桌子,柜子,与啡网文的理石口相结合,现代不同材质的碰撞,完美而相合一章。
深红色与米色的搭配,让人更年轻,硬包的使用,更舒适。棚顶与墙体的缝隙为壁纸伸缩缝,工艺使然。
两个原卫生间打通,变为一个卫生间,米色理石抽缝,地面地砖圈边,让空间宽敞而温暖。
高柜让空间更完满,明亮宽敞,高端大气。木的材质运用,使得现代的气息舒缓起来,慢慢如小河流淌。
精品设计案例
设计说明:
三室两厅一厨两卫,高层整体采用美式风格,色调以深色为主,体现美式的居家感和温馨感。
设计说明:
本案业主为年轻时尚小两口,所以我们考虑到未来想要给未来宝宝一个温馨舒适的一个房间,所以本案整体采用现代风格的手法,运用颜色,来打造整体空间的设计感及时尚感
设计说明:
本案以北欧风格为主题的设计,北欧风格能以现代、简洁、自然的特点俘获人心,所营造出来的生活氛围会让人倍感舒适与自在。
设计说明:
客户是一名成功人士,对于家的执念就是简单干净,客户衣服比较多,所以把每个空间都做了大衣柜,并且融入到设计里