立即预约 立即预约
免费定制整装家居

免费定制整装家居

一站置家 全程无忧 一省到底
hide.png

当前位置: 首页 > 装修案例效果图 > 保利达翠提湾

保利达翠提湾 95平 美式风格效果图

收藏
案例风格 美式 案例户型 三居 案例面积 95平米
楼盘名称 保利达翠提湾 设计师 林凤装饰设计师 案例类型 婚房

设计理念:空间的自由就像可以四处流动的水,虽然没有固定的形状,却能适合各种形状的需求。在这里,空气可以穿透心扉,照射到市内的每一个角落,如此纯净清明,让丰富的设计语言得到畅快淋漓的纾解,让每颗躁动的心灵静默。

客厅
第1张
第2张
第3张
餐厅
第1张
第2张
第3张
第4张
卧室
第1张
卫生间
第1张
门厅
第1张
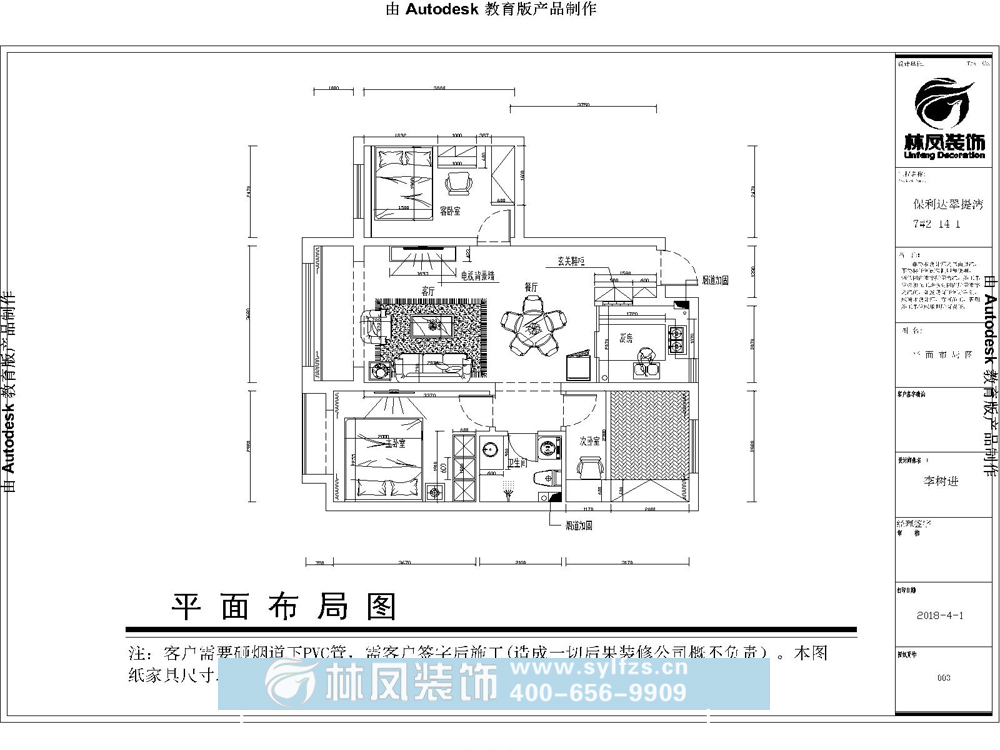
户型图
第1张
  • 案例详情

保利达翠提湾-95平-简美风格-客厅1.jpg 保利达翠提湾-95平-简美风格-客厅2.jpg 保利达翠提湾-95平-简美风格-客厅3.jpg

客厅的沙发采用深色的沙发,搭配着沙发背景墙乳胶漆颜色。显着格外舒适、电视背景墙采用规则石膏镜框线的搭配,让客厅空间很有穿透力。

保利达翠提湾-95平-简美风格-餐厅.jpg 保利达翠提湾-95平-简美风格-餐厅2.jpg 保利达翠提湾-95平-简美风格-餐厅.jpg 保利达翠提湾-95平-简美风格-餐厅2.jpg

餐厅区域主要以掉棚的造型为主,墙面以干净的颜色色乳胶漆为主,很有主次分明。所以掉棚才要四角倒圆的施工工艺。

保利达翠提湾-95平-简美风格-卧室1.jpg 保利达翠提湾-95平-简美风格-卫生间10.jpg 保利达翠提湾-95平-简美风格-门厅1.jpg 保利达翠提湾-95平-简美风格-户型图.jpg

案例设计师

林凤装饰设计师

设计师:林凤装饰设计师

从业时间:12年

设计理念:设计源于生活,细节成就品质

预约设计师

算算你家装修多少钱

报名即享丰厚赠品,享半价装修

免费报价
咨询热线:400-656-9909
20190221103704574636.jpg

精品设计案例

20180612134930523248.jpg 服务号二维码.jpg