立即预约 立即预约
免费定制整装家居

免费定制整装家居

一站置家 全程无忧 一省到底
hide.png

当前位置: 首页 > 装修案例效果图 > 名流印象五期

名流印象五期 70平 现代简约风格效果图

收藏
案例风格 现代简约 案例户型 二居 案例面积 70平米
楼盘名称 名流印象五期 设计师 林凤设计师 案例类型 婚房

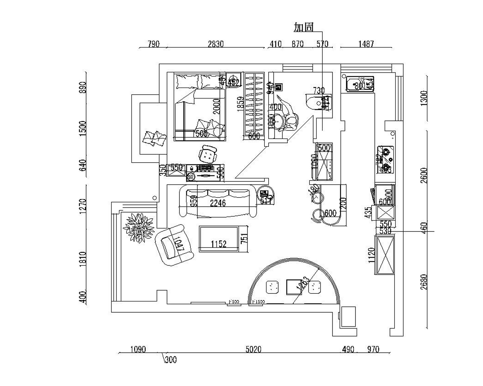
设计理念:本案户型为小户型,需要很仔细的考虑功能区域的划分,以及各个区域之间的关联,各个区域的动线规划。因为南北及东西不通透,通风形成不了直流,夏天肯定会很热,所以整体配色方案以很干净的冷色为主,米色为附色。家具为白色的,材质为亮面烤漆。

客厅
第1张
第2张
第3张
第4张
餐厅
第1张
卧室
第1张
卫生间
第1张
厨房
第1张
户型图
第1张
  • 案例详情

郎峰川-名流印象五期70㎡ 现代风格-客厅01.jpg 郎峰川-名流印象五期70㎡ 现代风格-客厅02.jpg 郎峰川-名流印象五期70㎡ 现代风格-客厅03.jpg 郎峰川-名流印象五期70㎡ 现代风格-客厅04.jpg

客厅和餐厅整体“配色方案”:主色为白色,附色为蓝色,装饰色为橘色、驼色。整体“材质搭配方案”:软材质为纯棉粗面软面料,硬材质为烤漆,装饰材质为亚光纯棉装饰布。餐厅为吧台设计,因为一个人住放餐桌就太浪费空间了,吧台能起到进餐的作用,在打开冰箱取东西时还能起到临时放置杂物的作用。吧台靠墙位置还设计了几个抽屉也可以放一些小的杂物。在电视背景墙左边做了一个半圆的地台,在有朋友过来做客时,提供了一个有些小情趣的空间。

郎峰川-名流印象五期70㎡ 现代风格-餐厅01.jpg 郎峰川-名流印象五期70㎡ 现代风格-卧室01.jpg

卧室很小,业主不喜欢地台,所以只能考虑放一个宽1500mm的小双人床,床头柜最多只能放一个,放一些医疗物品或小物件,台灯能比较方便的提供夜间照明,是很必要的。大衣柜是必须放的,几乎是大件衣物唯一的储藏空间。

郎峰川-名流印象五期70㎡ 现代风格-卫生间01.jpg

卫生间整体面积比较小,有窗户的卫生间是很好的,空间会很明亮,通风很好。瓷砖推荐格子款的,格子是不过时的样式,米色抛金砖是最理想的,格子纹很清晰。

郎峰川-名流印象五期70㎡ 现代风格-厨房01.jpg 郎峰川-名流印象五期70㎡ 现代风格-平面.jpg

案例设计师

林凤设计师

设计师:林凤设计师

从业时间:20年

设计理念:您的梦想由我来实现。

预约设计师

算算你家装修多少钱

报名即享丰厚赠品,享半价装修

免费报价
咨询热线:400-656-9909
20190221103704574636.jpg

精品设计案例

20180612134930523248.jpg 服务号二维码.jpg