立即预约 立即预约
免费定制整装家居

免费定制整装家居

一站置家 全程无忧 一省到底
hide.png

当前位置: 首页 > 装修案例效果图 > 教师楼

教师楼 85平 混搭风格效果图

收藏
案例风格 混搭 案例户型 二居 案例面积 85平米
楼盘名称 教师楼 设计师 林凤设计师 案例类型 婚房

设计理念:设计师对于本案的想法是打造直线条的现代与欧式混搭的空间,主体为现代风格,在现代风格基础之上添加了很多欧式风格的元素。空间配色为西红与豆绿的强烈对比,包括色度的强烈对比和冷色与暖色的强烈对比,红色与绿色为补色,整体色彩丰富和谐。红色因为色度比较高,所以需要做很好的面积比例控制。材质搭配为皮革,混油漆面,亚光墙体,金属装饰

客厅
第1张
第2张
第3张
第4张
第5张
第6张
餐厅
第1张
卧室
第1张
卫生间
第1张
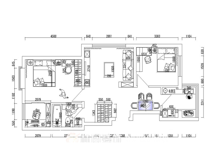
户型图
第1张
  • 案例详情

郎峰川-教师楼85.6平混搭风格-客厅01.jpg 郎峰川-教师楼85.6平混搭风格-客厅02.jpg 郎峰川-教师楼85.6平混搭风格-客厅03.jpg 郎峰川-教师楼85.6平混搭风格-客厅04.jpg 郎峰川-教师楼85.6平混搭风格-客厅05.jpg 郎峰川-教师楼85.6平混搭风格-客厅06.jpg

客厅空间采光特别好,所以在整个空间墙体用了浅豆绿色,沙发材质为皮质西红色,白色烤漆的茶几能很好的弱化西红与豆绿的强烈对比关系,增添了整个空间的平衡感。棚角大部分做的是欧式石膏线,为了增加跌级效果,下方又加了一条平贴线,丰富了棚角的层次。

郎峰川-教师楼85.6平混搭风格-餐厅01.jpg

餐厅家具为现代白钢+烤漆玻璃,搭配沙发材质和颜色,餐椅与沙发达到统一。镜片有拉伸的效果,视觉上增加了面积不大的餐厅与过廊空间。

卧室.jpg

主卧室强调空间的层次感,主题颜色为蓝色、白色与木色。竖条纹的壁纸拉高了卧室举架,棚角也为双层石膏线设计。

郎峰川-教师楼85.6平混搭风格-卫生间.jpg 郎峰川-教师楼85.6平混搭风格-户型图.jpg

案例设计师

林凤设计师

设计师:林凤设计师

从业时间:20年

设计理念:您的梦想由我来实现。

预约设计师

算算你家装修多少钱

报名即享丰厚赠品,享半价装修

免费报价
咨询热线:400-656-9909
20190221103704574636.jpg

精品设计案例

20180612134930523248.jpg 服务号二维码.jpg