立即预约 立即预约
免费定制整装家居

免费定制整装家居

一站置家 全程无忧 一省到底
hide.png

当前位置: 首页 > 装修案例效果图 > 金地艺境

金地艺境 145平 现代简约风格效果图

收藏
案例风格 现代简约 案例户型 三居 案例面积 145平米
楼盘名称 金地艺境 设计师 李丹 案例类型 改善性住宅

设计理念:现代风格是非常常见的风格,但是现代装修中,可以采用一些材质混搭,来让整体空间更加有立体感,更加的时尚。

客厅
第1张
第2张
第3张
第4张
第5张
餐厅
第1张
第2张
卧室
第1张
卫生间
第1张
厨房
第1张
门厅
第1张
第2张
过廊
第1张
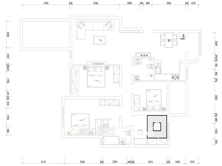
户型图
第1张
  • 案例详情

张思文-金地艺境-145-现代风格-客厅5.jpg 张思文-金地艺境-145-现代风格-客厅.jpg 张思文-金地艺境-145-现代风格-客厅1.jpg 张思文-金地艺境-145-现代风格-客厅2.jpg 张思文-金地艺境-145-现代风格-客厅4.jpg

电视背景墙则采用地板上墙的材质,配上黑色的镜片,让整个背景墙看上去更加丰富

张思文-金地艺境-145-现代风格-餐厅 (2).jpg 张思文-金地艺境-145-现代风格-餐厅.jpg

餐厅的背景墙选用菱形镜片,风水学上讲,通过的镜片照射,起到食物加倍的寓意

张思文-金地艺境-145-现代风格-卧室4.jpg 张思文-金地艺境-145-现代风格-卫生间.jpg 张思文-金地艺境-145-现代风格-厨房.jpg 张思文-金地艺境-145-现代风格-玄关1.jpg 张思文-金地艺境-145-现代风格-玄关.jpg 张思文-金地艺境-145-现代风格-过廊.jpg

过廊的吊棚利用四分之一圆做出了鱼形的造型,年年有鱼。

张思文-金地艺境-145-现代风格-平面.jpg

案例设计师

李丹

设计师:李丹

从业时间:5年

设计理念:用我的专业和你的想法,打造专业的家

预约设计师

算算你家装修多少钱

报名即享丰厚赠品,享半价装修

免费报价
咨询热线:400-656-9909
20190221103704574636.jpg

精品设计案例

20180612134930523248.jpg 服务号二维码.jpg