立即预约 立即预约
免费定制整装家居

免费定制整装家居

一站置家 全程无忧 一省到底
hide.png

当前位置: 首页 > 装修案例效果图 > 伯爵源筑

伯爵源筑 117平 现代简约风格效果图

收藏
案例风格 现代简约 案例户型 三居 案例面积 117平米
楼盘名称 伯爵源筑 设计师 李丹 案例类型 改善性住宅

设计理念:本案是现代风格,大都市的生活很繁琐,想回家有个简单不复杂温馨的生活空间,在整体的设计考虑已简单的手法来设计。

客厅
第1张
第2张
第3张
第4张
餐厅
第1张
第2张
厨房
第1张
儿童房
第1张
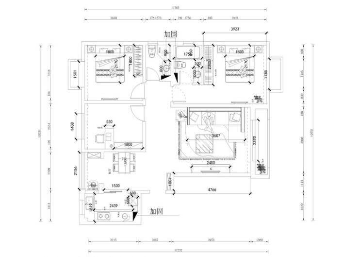
户型图
第1张
  • 案例详情

张思文-伯爵源筑117平现代风格-客厅3.jpg 张思文-伯爵源筑117平现代风格-客厅.jpg 张思文-伯爵源筑117平现代风格-客厅1.jpg 张思文-伯爵源筑117平现代风格-客厅2.jpg

客户棚面设计与电视背景墙的设计结合一起,从沙发的角度能看出一体式也是本案的亮点,传统的回字棚用两侧的灯带体现客厅的长度。

张思文-伯爵源筑117平现代风格-餐厅.jpg 张思文-伯爵源筑117平现代风格-餐厅1.jpg

餐厅比较简单布艺竖条浅色的,使整体餐区的干净整洁。

张思文-伯爵源筑117平现代风格-厨房.jpg

橱柜采用烤漆淡黄彰显小的厨房的空间感,用理石的瓷砖体现橱柜的线条和质感。

张思文-伯爵源筑117平现代风格-卧室.jpg

卧室粉色的乳胶漆与一圈的白色墙裙有鲜明的呼应,也是小公主喜欢的。

户型图.jpg

案例设计师

李丹

设计师:李丹

从业时间:5年

设计理念:用我的专业和你的想法,打造专业的家

预约设计师

算算你家装修多少钱

报名即享丰厚赠品,享半价装修

免费报价
咨询热线:400-656-9909
20190221103704574636.jpg

精品设计案例

20180612134930523248.jpg 服务号二维码.jpg