立即预约 立即预约
免费定制整装家居

免费定制整装家居

一站置家 全程无忧 一省到底
hide.png

当前位置: 首页 > 装修案例效果图 > 中航城

中航城 112平 美式风格效果图

收藏
案例风格 美式 案例户型 三居 案例面积 112平米
楼盘名称 中航城 设计师 林凤装饰设计师 案例类型 婚房

设计理念:本案以后简约美式为主的设计,简美风格的特色是将设计的元素、色彩、照明、原材料等简化到最少的程度,客户对材料的色彩质感要求很高。

客厅
第1张
第2张
餐厅
第1张
第2张
卧室
第1张
卫生间
第1张
过廊
第1张
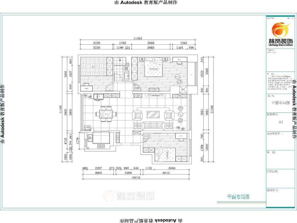
户型图
第1张
  • 案例详情

中航城-112平-简美风格-客厅1.jpg 中航城-112平-简美风格-客厅2.jpg

客厅的装修风格。客厅作为待客区域,一般要求简洁温馨,色彩质感。

中航城-112平-简美风格-餐厅.jpg 中航城-112平-简美风格-餐厅2.jpg

餐厅即美式餐厅风格,渲染,美式木质桌椅 体现出业主的品味。

中航城-112平-简美风格-卧室.jpg

美式卧室配上阳光房阳台,沐浴阳光,心情舒畅。

中航城-112平-简美风格-卫生间1.jpg

卫生间墙地砖选择米黄色系列的砖给人带来的是一种温馨,浴屏的独特设计分开了空间的干湿分离,理石面洗簌柜体现出了客户的生活品质。

中航城-112平-简美风格-过廊2.jpg 中航城-112平-简美风格-户型图.jpg

案例设计师

林凤装饰设计师

设计师:林凤装饰设计师

从业时间:6年

设计理念:设计源于生活,生活因设计而改变。

预约设计师

算算你家装修多少钱

报名即享丰厚赠品,享半价装修

免费报价
咨询热线:400-656-9909
20190221103704574636.jpg

精品设计案例

20180612134930523248.jpg 服务号二维码.jpg