立即预约 立即预约
免费定制整装家居

免费定制整装家居

一站置家 全程无忧 一省到底
hide.png

当前位置: 首页 > 装修案例效果图 > 沈铁家园

沈铁家园 170平 美式风格效果图

收藏
案例风格 美式 案例户型 四居 案例面积 170平米
楼盘名称 沈铁家园 设计师 林凤设计师 案例类型 改善性住宅

设计理念:将功能性和实用性作为设计的重点,在用色上讲究和谐、统一。家里的每一寸空间都值得我们用心去装饰。

客厅
第1张
第2张
第3张
第4张
餐厅
第1张
卫生间
第1张
第2张
厨房
第1张
第2张
门厅
第1张
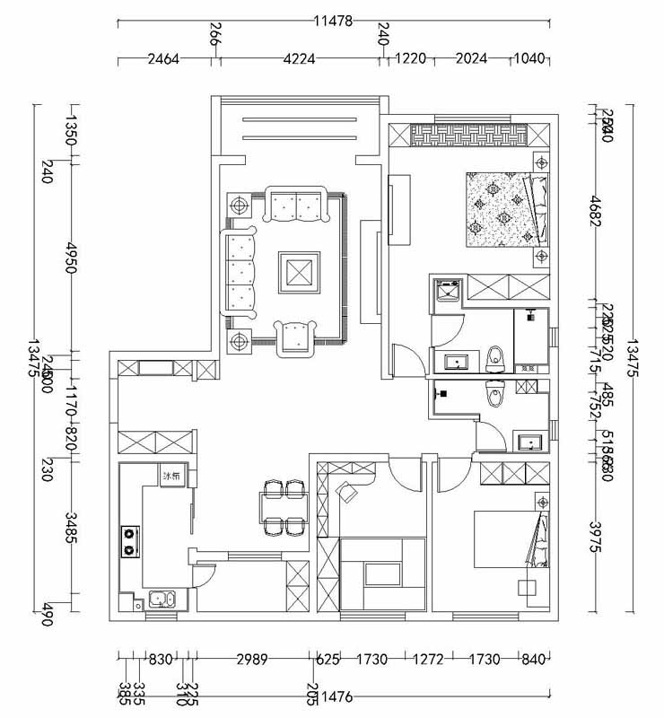
户型图
第1张
  • 案例详情

沈铁家园-170平-美式风格-客厅2.jpg 沈铁家园-170平-美式风格-客厅3.jpg 沈铁家园-170平-美式风格-客厅.jpg 沈铁家园-170平-美式风格-客厅-首图 (1).jpg

客厅作为待客区域,一般要求简洁明快,同时装修较其它空间要更明快光鲜,通常使用大量的金属色和木饰面装饰。让人感受到客厅是宽敞而富有历史气息的。

沈铁家园-170平-美式风格-餐厅.jpg

都是浅灰色调,但颜色的变化多样,让美式的风格洋溢着春天的气息。

沈铁家园-170平-美式风格-卫生间.jpg 沈铁家园-170平-美式风格-卫生间2_副本.jpg

简美风具有非常浓厚的历史文化气息,让我们的家看起来更加高端美丽。

沈铁家园-170平-美式风格-厨房.jpg 沈铁家园-170平-美式风格-厨房2.jpg

将功能性和实用性作为设计的重点,在用色上讲究和谐、统一。

沈铁家园-170平-美式风格-玄关.jpg 沈铁佳园170平米  4#1-18-3  车蕴航 实尺-Model.jpg

案例设计师

林凤设计师

设计师:林凤设计师

从业时间:8年

设计理念:设计界的一股清流,设计走心最重要。

预约设计师

算算你家装修多少钱

报名即享丰厚赠品,享半价装修

免费报价
咨询热线:400-656-9909
20190221103704574636.jpg

精品设计案例

20180612134930523248.jpg 服务号二维码.jpg