立即预约 立即预约
免费定制整装家居

免费定制整装家居

一站置家 全程无忧 一省到底
hide.png

当前位置: 首页 > 装修案例效果图 > 绿城全运村

绿城全运村 105平 现代简约风格效果图

收藏
案例风格 现代简约 案例户型 二居 案例面积 105平米
楼盘名称 绿城全运村 设计师 林凤装饰设计师 案例类型 儿童房

设计理念:本案的设计最初灵感来自家中的双胞胎兄弟,孩子们对明亮的颜色尤为的感兴趣,结合了男房主前卫的思想,我们大胆的运用了鲜明的颜色搭配。

客厅
第1张
第2张
第3张
餐厅
第1张
卧室
第1张
卫生间
第1张
阳台
第1张
门厅
第1张
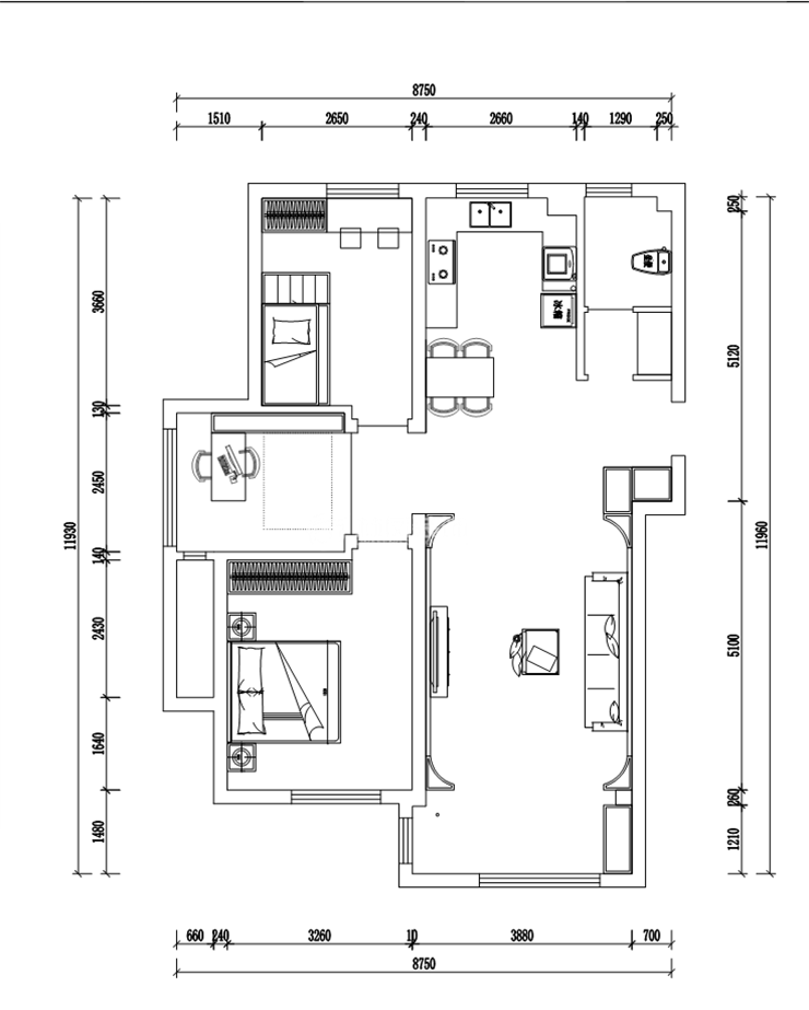
户型图
第1张
  • 案例详情

绿城全运村-105平-现代前卫风格-客厅1.jpg 绿城全运村-105平-现代前卫风格-客厅2.jpg 绿城全运村-105平-现代前卫风格-客厅4.jpg

两面的圆弧造型主要是为了虚化两面的墙垛为了更好的融入整体的风格之内。

绿城全运村-105平-现代前卫风格-餐厅.jpg

因为客户家的双胞胎宝宝还很小,吃饭的时时候不注意吃饭,所以我们在餐厅的桌子上挂一些动物或者小朋友感兴趣的相框,吸引他们的注意力。

绿城全运村-105平-现代前卫风格-厨房.jpg

厨房是明亮的地方所以墙面我们选用与大体颜色一样的灰色,但是橱柜运用了非常大胆得跳色。

绿城全运村-105平-现代前卫风格-卫生间.jpg

卫生间做旧的仿古瓷砖主要是整体看起来酷酷的,因为日后卫生间的使用频率在这个家中也是很高的,为了不像众多卫生间一样单调无味和更加把使用功能的最大化,所以整体的选择也是非常下功夫的。

绿城全运村-105平-现代前卫风格-阳台.jpg 绿城全运村-105平-现代前卫风格-门厅.jpg 绿城全运村-105平-现代前卫风格-平面.png

案例设计师

林凤装饰设计师

设计师:林凤装饰设计师

从业时间:4年

设计理念:因人而异的设计才是好设计

预约设计师

算算你家装修多少钱

报名即享丰厚赠品,品质装修

免费报价
咨询热线:400-656-9909
20190221103704574636.jpg

精品设计案例

20180612134930523248.jpg 服务号二维码.jpg