立即预约 立即预约
免费定制整装家居

免费定制整装家居

一站置家 全程无忧 一省到底
hide.png

当前位置: 首页 > 装修案例效果图 > 格林生活坊

格林生活坊 145平 中式风格效果图

收藏
案例风格 中式 案例户型 三居 案例面积 145平米
楼盘名称 格林生活坊 设计师 张景新 案例类型 改善性住宅

设计理念:现代中式风格的装修风格迎合了年轻人的喜爱,都市忙碌生活,早已经让我们烦腻了花天酒地,灯红酒绿,我们更喜欢的一个安静,祥和,看上去明朗宽敞舒适的家,来消除工作的疲惫,忘却都市的喧闹。这也是现在流行的装修风格之一:现代中式风格。

客厅
第1张
第2张
第3张
第4张
餐厅
第1张
第2张
卧室
第1张
卫生间
第1张
门厅
第1张
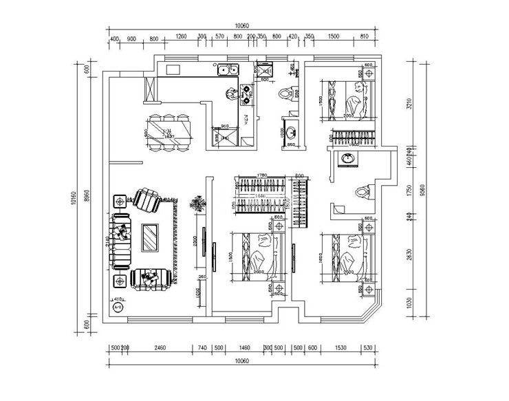
户型图
第1张
  • 案例详情

格林生活坊-145平现代中式-客厅03.jpg 格林生活坊-145平现代中式-客厅.jpg 格林生活坊-145平现代中式-客厅01.jpg 格林生活坊-145平现代中式-客厅02.jpg

客厅是整个空间的重点,客厅的背景墙我们选用的理石与米色硬包的搭配提升空间感.显的格外的大气.有高度的韵味.

格林生活坊-145平现代中式-餐厅01.jpg 格林生活坊-145平现代中式-餐厅.jpg

餐厅虽然是吃饭的地方,但是也不耽误餐厅的布置镂空的玄关,使整个餐厅空间与客厅分离,功能区更加明显,酒柜造型墙让空间更活跃而且还有高雅的气息。

格林生活坊-145平现代中式-卧室.jpg

卧室是休息的地方、加上业主想要实用的装饰,就放置了摆件,加上硬包的背景搭配花格,也让人看起来放松舒适又大气。

格林生活坊-145平现代中式-卫生间.jpg

卫生间是每个家庭的重中之重,在墙面瓷砖的选择上大胆的选用灰蓝色,延续了风格的特点,简结的卫生间提升到高贵的顶点。

格林生活坊-145平现代中式-门厅.jpg 格林生活坊-145平现代中式-平面图.jpg

案例设计师

张景新

设计师:张景新

从业时间:6年

设计理念:合理的划分空间,让设计融入生活,营造自然,品味,格调

预约设计师

算算你家装修多少钱

报名即享丰厚赠品,享半价装修

免费报价
咨询热线:400-656-9909
20190221103704574636.jpg

精品设计案例

20180612134930523248.jpg 服务号二维码.jpg