立即预约 立即预约
免费定制整装家居

免费定制整装家居

一站置家 全程无忧 一省到底
hide.png

当前位置: 首页 > 装修案例效果图 > 华润橡树湾

华润橡树湾 135平 现代简约风格效果图

收藏
案例风格 现代简约 案例户型 三居 案例面积 135平米
楼盘名称 华润橡树湾 设计师 杨达 案例类型 改善性住宅

设计理念:在满足功能需要的前提下,让一些空间和人既物进行合理的分配组合,描绘出最丰富动人的空间效果。利用格局变化,赋予居宅明亮氛围,打造一个安静,祥和,明朗宽敞舒适的家,来消除工作一天的疲惫。

客厅
第1张
第2张
第3张
餐厅
第1张
卧室
第1张
卫生间
第1张
厨房
第1张
衣帽间
第1张
过廊
第1张
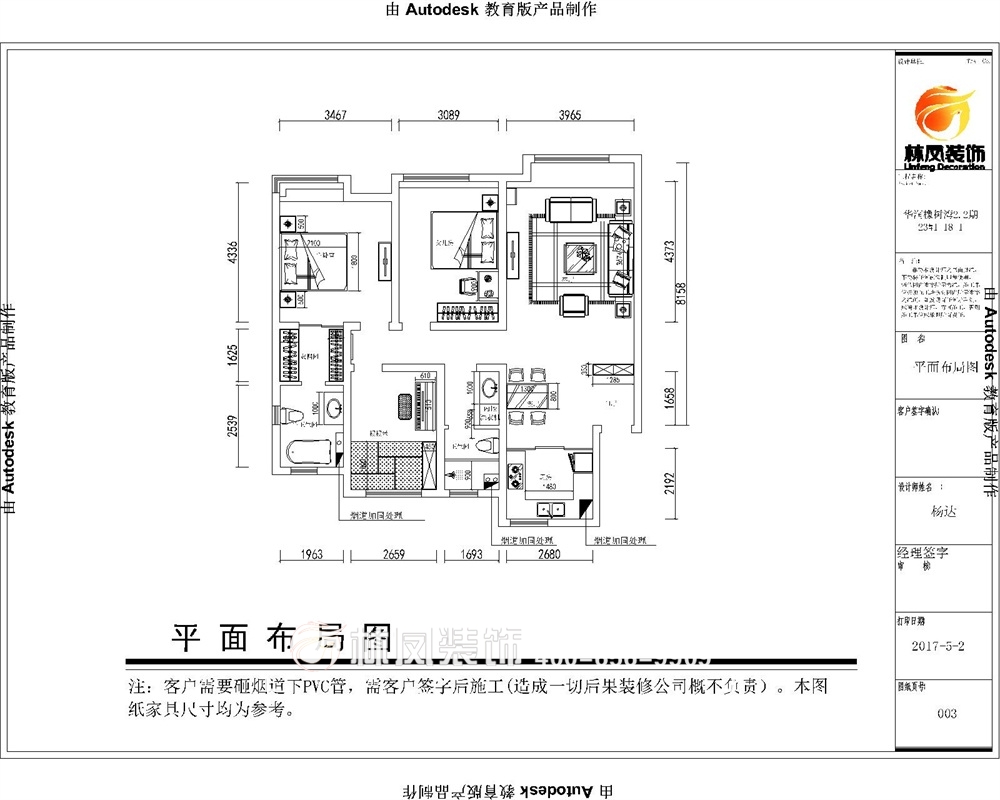
户型图
第1张
  • 案例详情

杨达-华润橡树湾 135㎡-现代风格-客厅2.jpg 杨达-华润橡树湾 135㎡-现代风格-客厅.jpg 杨达-华润橡树湾 135㎡-现代风格-客厅1.jpg

客厅直线边棚吊顶,使整体空间不失简单,沙发整体采用布艺素色,颜色略深,沉着冷静,搭配各色的抱枕,避免单调。电视背景墙运用石膏线装饰,简单大方,不失美观。

杨达-华润橡树湾 135㎡-现代风格-餐厅.jpg

餐桌颜色和沙发颜色统一,使空间具有统一性,整体浑然天成。背景墙相框装饰,避免单调。

主卧.jpg

卧室没有过多的摆设和装饰,通过整体空间颜色的搭配,使整个卧室显得简介大方,布艺素色的床品,照片背景墙,使整体倍感温馨,让卧室空间充满了自然气息,简洁舒心。衣帽间的设计,使储物功能更加强大。

杨达-华润橡树湾 135㎡-现代风格-卫生间.jpg

卫生间虽小,但实用性强。木纹质地的墙砖,简介大方,赋有现代气息。简单的装扮,让整个卫生间具有美感。

杨达-华润橡树湾 135㎡-现代风格-厨房.jpg

厨房整体简洁明了,白色条纹墙砖,干净明亮,空间虽小但实用性很好,整体动线顺畅。

杨达-华润橡树湾 135㎡-现代风格-衣帽间.jpg 杨达-华润橡树湾 135㎡-现代风格-过廊.jpg 杨达-华润橡树湾 135㎡-现代风格-户型图.jpg

案例设计师

杨达

设计师:杨达

从业时间:10年

设计理念:精雕细琢,返璞归真。

预约设计师

算算你家装修多少钱

报名即享丰厚赠品,享半价装修

免费报价
咨询热线:400-656-9909
20190221103704574636.jpg

精品设计案例

20180612134930523248.jpg 服务号二维码.jpg