立即预约 立即预约
免费定制整装家居

免费定制整装家居

一站置家 全程无忧 一省到底
hide.png

当前位置: 首页 > 装修案例效果图 > 华府丹郡

华府丹郡 95平 地中海风格效果图

收藏
案例风格 地中海 案例户型 三居 案例面积 95平米
楼盘名称 华府丹郡 设计师 林凤设计师 案例类型 改善性住宅

设计理念:本案以地中海为主的设计手法,中性时尚,温馨,丰富但不复杂,这种搭配令空间充满恒久的亲和力!

客厅
第1张
第2张
第3张
第4张
第5张
餐厅
第1张
第2张
卧室
第1张
第2张
卫生间
第1张
厨房
第1张
书房
第1张
过廊
第1张
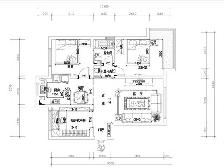
户型图
第1张
  • 案例详情

华府丹郡-95平-地中海风格-客厅1.jpg 华府丹郡-95平-地中海风格-客厅2.jpg 华府丹郡-95平-地中海风格-沙发背景.jpg 华府丹郡-95平-地中海风格-客厅.jpg 华府丹郡-95平-地中海风格-头图.jpg

客厅采用三种主色调、配以暖色或是绿植的点缀的手法,过度自然,大气中不乏纯粹的暖暖生活氛围。沙发背景墙用整面墙用乳胶漆调色来营造静谧而干净的休息氛围,配合棚顶灯光,给人带来舒适、惬意的感觉。与其不同,电视背景墙大胆采用理石上墙的创意,用石膏板造型多元化背景墙空间,壁纸的运用把整体连接起来,大方而自然。阳台用生态木进行了装饰,摒弃了以往阳台墙白、窗白、纱帘白的传统理念。更独特的在一角做了花圃设计,摆放休闲座椅,让主人不用出户,也能感受惬意的下午茶时光。

华府丹郡-95平-地中海风格-餐厅厨房.jpg 华府丹郡-95平-地中海风格-餐厅.jpg

此方案设计餐厅融入厨房,厨房融入餐厅,美观实用两不耽误。纯色乳胶漆的墙体不抢戏。

华府丹郡-95平-地中海风格-主卧.jpg 华府丹郡-95平-地中海风格-主卧.jpg

卧室考虑飘窗的存在,床边只放了一个单边放床头柜,墙体蓝色凸显整体的效果。

华府丹郡-95平-地中海风格-卫生间.jpg

卫生间采用仿古面包砖,AB款式,既有变化又不让人觉得颜色很乱。

华府丹郡-95平-地中海风格-厨房.jpg

厨房采用的是开放厨房,将餐厅融入一起,蓝色瓷砖更加突出浓重的地中海风情。

华府丹郡-95平-地中海风格-书房.jpg

书房由于与客厅相连,考虑通透性的前提下做了敞开处理,墙面定制的整体书柜,更是彰显大气而不烦乱的书香之气。

华府丹郡-95平-地中海风格-过廊.jpg 华府丹郡-95平-地中海风格-平面图.jpg

案例设计师

林凤设计师

设计师:林凤设计师

从业时间:9年

设计理念:想客户之所想,急客户之所急,永远吧客户的利益放在自己的利益之上。

预约设计师

算算你家装修多少钱

报名即享丰厚赠品,品质装修

免费报价
咨询热线:400-656-9909
20190221103704574636.jpg

精品设计案例

20180612134930523248.jpg 服务号二维码.jpg