立即预约
免费定制整装家居
一站置家 全程无忧 一省到底
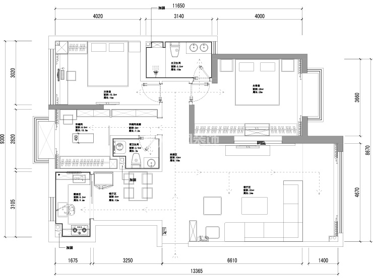
设计理念:家装设计其实更多的是一种对未来生活的规划,我们设计出来的家要有一定远见性和预测性,规划好家庭成员的生活动线是整个设计中很重要的一部分。由于本户型原始结构承重结构比较多,在布局的处理上我没有做过多的拆改,只是根据客户的需求在功能上做了优化。
案例详情
客餐厅整体以灰色为主色调,搭配金色元素来提升奢华感。大面积墙面布纹壁纸提升空间质感。中性的色调搭配上配饰和花艺,硬朗而又不失柔美,现代而深沉。干净利落的空间显得更加大气、优雅。个性的石材电视背景和皮质沙发的结合营造出一种惬意、干净的空间氛围。
餐厅延续了客厅的色调,整体颜色搭配不显突兀,增添优雅的氛围。
整体墙面用了壁纸,那么在壁纸的选择上是根据整体色调选择的。来说说家具,衣柜是整体定制的,这样以来不仅充分利用了空间增加了更多的收纳,也规避了一些卫生死角。
选瓷砖选亚光的的好一点,卫生间在用的时候会有水渍或水印到瓷砖上,亮光的很明显,哑光的不明显,这次本案选用的是爵士白与黑白根做拼花铺设。
墙砖是白色系,地砖客厅顺延灰色系,整体橱柜也采用了油漆门板面拉手设计,右侧立面设计了吊柜立面隐藏了燃气表也增加了收纳。油烟机选择了侧吸式
精品设计案例
设计说明:
三室两厅一厨两卫,高层整体采用美式风格,色调以深色为主,体现美式的居家感和温馨感。
设计说明:
本案业主为年轻时尚小两口,所以我们考虑到未来想要给未来宝宝一个温馨舒适的一个房间,所以本案整体采用现代风格的手法,运用颜色,来打造整体空间的设计感及时尚感
设计说明:
本案以北欧风格为主题的设计,北欧风格能以现代、简洁、自然的特点俘获人心,所营造出来的生活氛围会让人倍感舒适与自在。
设计说明:
客户是一名成功人士,对于家的执念就是简单干净,客户衣服比较多,所以把每个空间都做了大衣柜,并且融入到设计里