立即预约
免费定制整装家居
一站置家 全程无忧 一省到底
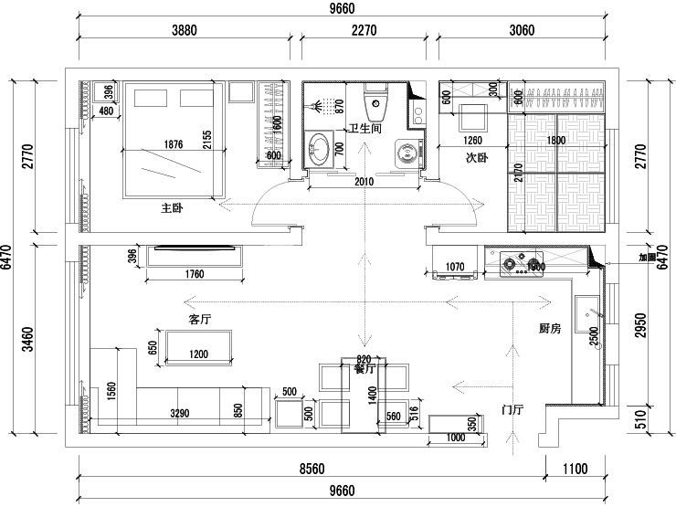
设计理念:本案设计以简洁手法描述,用色调上的同色系来增加层次,让家的氛围更雅致贴新。整体为黑白灰风格,年轻人的时尚标杆!
案例详情
客厅突出时尚的主题,黑白灰色调时尚优雅,小物件的色调点到为止,有特色又不喧宾夺主。
客餐厅一体的布置,使餐厅空间开阔简洁,木质的餐椅搭配蓝色的室内色调回归了一种质朴的氛围。
原木配白墙,让卧室显得充满宁静,打造舒适的休憩空间,让主人有更好的睡眠质量。
整体暖色调,让狭小的空间更温暖,各个功能性满足,尺寸合理。让使用者更加便捷。
开放式厨房,年轻活力时尚的代表,浅色柜门与墙面花砖的搭配,让进门位置成为可观之景。
精品设计案例
设计说明:
三室两厅一厨两卫,高层整体采用美式风格,色调以深色为主,体现美式的居家感和温馨感。
设计说明:
本案业主为年轻时尚小两口,所以我们考虑到未来想要给未来宝宝一个温馨舒适的一个房间,所以本案整体采用现代风格的手法,运用颜色,来打造整体空间的设计感及时尚感
设计说明:
本案以北欧风格为主题的设计,北欧风格能以现代、简洁、自然的特点俘获人心,所营造出来的生活氛围会让人倍感舒适与自在。
设计说明:
客户是一名成功人士,对于家的执念就是简单干净,客户衣服比较多,所以把每个空间都做了大衣柜,并且融入到设计里