立即预约 立即预约
免费定制整装家居

免费定制整装家居

一站置家 全程无忧 一省到底
hide.png

当前位置: 首页 > 装修案例效果图 > 优品天地

优品天地 130平 现代简约风格效果图

收藏
案例风格 现代简约 案例户型 三居 案例面积 130平米
楼盘名称 优品天地 设计师 林凤设计师 案例类型 旧房改造

设计理念:案以现代简约风格设计,整体以舒适、实用为主,多增加储纳空间,空间干净整洁富有文化气息。

客厅
第1张
第2张
第3张
第4张
第5张
第6张
餐厅
第1张
卧室
第1张
卫生间
第1张
厨房
第1张
门厅
第1张
第2张
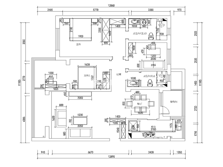
户型图
第1张
  • 案例详情

优品天地-130平-现代简约风格-电视背景墙.jpg 优品天地-130平-现代简约风格-客厅1.jpg 优品天地-130平-现代简约风格-客厅2.jpg 优品天地-130平-现代简约风格-客厅3.jpg 优品天地-130平-现代简约风格-客厅4.jpg 优品天地-130平-现代简约风格-首图.jpg

客厅地面全部采用多彩仿木纹地板,由于色彩比一般的地板要多些,所以我们在选择客厅家具颜色上多利用了一些斑马纹木色来中和地面的色彩,使整个客厅空间变得成熟稳重,又不失灵动。

优品天地-130平-现代简约风格-餐厅.jpg

餐厅空间是很大的,所以我们利用这里的空间选择一张较大的餐桌,在餐桌后身设立一组餐边柜为餐厅就餐者提供很多便利,也为餐厅提高档次。

优品天地-130平-现代简约风格-卧室.jpg

简洁的线条,适当的吊棚紧密结合着定制衣柜把卧室营造出干净,舒适的睡眠空间。

优品天地-130平-现代简约风格-卫生间.jpg

卫生间我们改成了干湿分离,运用小块瓷砖与单一颜色的洗手盆融合,使这里既温馨有干净

优品天地-130平-现代简约风格-厨房.jpg

厨房墙面利用灰色系瓷砖与橱柜的酷黑主体颜色呼应,色彩分明又能体现出厨房的干净整洁。

优品天地-130平-现代简约风格-门厅.jpg 优品天地-130平-现代简约风格-门厅2.jpg 优品天地-130平-现代简约风格-平面图.jpg

案例设计师

林凤设计师

设计师:林凤设计师

从业时间:13年

设计理念:一切随心,用心去感悟空间

预约设计师

算算你家装修多少钱

报名即享丰厚赠品,享半价装修

免费报价
咨询热线:400-656-9909
20190221103704574636.jpg

精品设计案例

20180612134930523248.jpg 服务号二维码.jpg