立即预约 立即预约
免费定制整装家居

免费定制整装家居

一站置家 全程无忧 一省到底
hide.png

当前位置: 首页 > 装修案例效果图 > 中海和平之门

中海和平之门 125平 北欧风格效果图

收藏
案例风格 北欧 案例户型 三居 案例面积 125平米
楼盘名称 中海和平之门 设计师 林凤设计师 案例类型 改善性住宅

设计理念:本案以北欧风格设计,整体以时尚,温馨,简洁,不失典雅,端庄。让人比较容易接受的风格,是年轻人值得选择的案例。

客厅
第1张
第2张
第3张
第4张
餐厅
第1张
第2张
卧室
第1张
卫生间
第1张
厨房
第1张
第2张
门厅
第1张
过廊
第1张
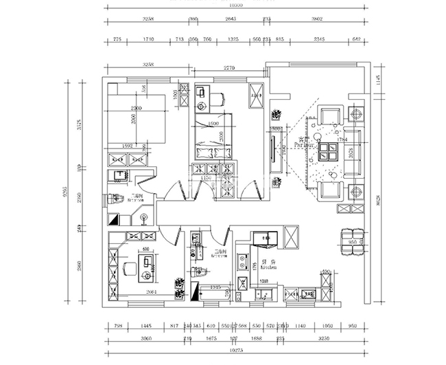
户型图
第1张
中海和平之门-125平-北欧风格-客厅.jpg 中海和平之门-125平-北欧风格-客厅2.jpg 中海和平之门-125平-北欧风格-客厅1.jpg 中海和平之门-125平-北欧风格-首图.jpg

客厅我们采用灰色系的瓷砖地面,电视背景与沙发背景都相对应做的造型,棚顶用简单的工艺石膏线勾勒,这样墙面与天棚上交相辉映,从简至繁。

中海和平之门-125平-北欧风格-餐厅.jpg 中海和平之门-125平-北欧风格-餐厅1.jpg

餐厅空间不是很大,正好在厨房门口位置,这里一定要注意餐桌尺寸,利用好空间位置合理应用布局。

中海和平之门-125平-北欧风格-卧室.jpg

由于男女主人喜欢安静,因此卧室的设计主要以简洁大方舒适为主,墙面采用布纹原版壁纸,看着十分温馨,给人一种想很快入睡的感觉。

中海和平之门-125平-北欧风格-卫生间.jpg

卫生间结构合理注意洗手盆尺寸不能太大,瓷砖采用温暖柔和的花片瓷砖,让主人在卫生间的时候也能感觉到温馨。

中海和平之门-125平-北欧风格-厨房.jpg 中海和平之门-125平-北欧风格-厨房1.jpg

厨房的面积也不是很大,因此厨房的设计除了效果以外就是储物空间了,但凡有能做柜子的地方,在不影响效果的前提下,设计师都为房主做上了储物柜,遇到窗口不能放吊柜的地方,就利用隔板代替。

中海和平之门-125平-北欧风格-门厅.jpg 中海和平之门-125平-北欧风格-过廊.jpg 平面图.jpg

案例设计师

林凤设计师

设计师:林凤设计师

从业时间:13年

设计理念:一切随心,用心去感悟空间

预约设计师

算算你家装修多少钱

报名即享丰厚赠品,品质装修

免费报价
咨询热线:400-656-9909
20190221103704574636.jpg

精品设计案例

20180612134930523248.jpg 服务号二维码.jpg