立即预约 立即预约
免费定制整装家居

免费定制整装家居

一站置家 全程无忧 一省到底
hide.png

当前位置: 首页 > 装修案例效果图 > 碧桂园星荟

碧桂园星荟 78平 美式风格效果图

收藏
案例风格 美式 案例户型 二居 案例面积 78平米
楼盘名称 碧桂园星荟 设计师 林凤设计师 案例类型 婚房

设计理念:简美式的家装在房屋设计、家具打造、色彩处理和元素拼接上都力求简单化,通过不拘一格的线条设计加简洁单一的色调,给人们提供最爽朗、最清脆的住宅环境。

客厅
第1张
第2张
第3张
餐厅
第1张
第2张
卧室
第1张
第2张
第3张
第4张
第5张
卫生间
第1张
第2张
厨房
第1张
门厅
第1张
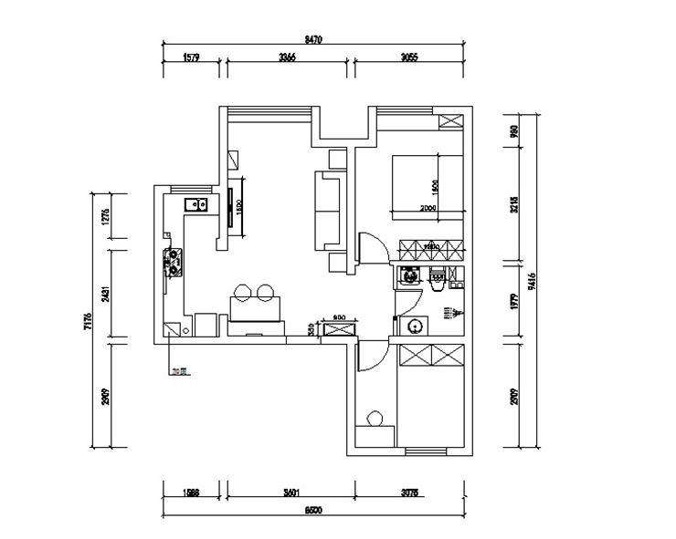
户型图
第1张
  • 案例详情

碧桂园星荟-78㎡-简美风格-客厅 (3).jpg 碧桂园星荟-78㎡-简美风格-客厅 (4).jpg 碧桂园星荟-78㎡-简美风格-客厅 (5).jpg

客厅电视壁炉柜的设计,不但让空间看起来更加轻盈又让背景墙装饰效果更加立体。沙发背景墙的壁灯让夜晚的客厅更加神秘浪漫有情调。

碧桂园星荟-78㎡-简美风格-餐厅 (2).jpg 碧桂园星荟-78㎡-简美风格-餐厅 (1).jpg

厨房瓷砖的选择让烹饪工作更有乐趣,不仅如此,原始厨房的格局很差,新的规划让厨房的使用更加合理,小到每一个空间的使用,设计师都是精心安排。

碧桂园星荟-78㎡-简美风格-主卧 (1).jpg 碧桂园星荟-78㎡-简美风格-主卧 (2).jpg 碧桂园星荟-78㎡-简美风格-主卧 (3).jpg 碧桂园星荟-78㎡-简美风格-次卧 (1).jpg 碧桂园星荟-78㎡-简美风格-次卧 (2).jpg

主卧房间的设计考虑女主人收纳的特点,将梳妆台与飘窗柜结合设计。并贴心的在床头两侧留USB充电插座。

碧桂园星荟-78㎡-简美风格-生间 (1).jpg 碧桂园星荟-78㎡-简美风格-卫生间 (2).jpg 碧桂园星荟-78㎡-简美风格-厨房.jpg

厨房瓷砖的选择让烹饪工作更有乐趣,不仅如此,原始厨房的格局很差,新的规划让厨房的使用更加合理,小到每一个空间的使用,设计师都是精心安排。

碧桂园星荟-78㎡-简美风格-门厅.jpg 碧桂园星荟-78㎡-简美风格-平面图.jpg

案例设计师

林凤设计师

设计师:林凤设计师

从业时间:9年

设计理念:艺术里的炊烟 专业、走心、做生活化有品位设计 私人定制您的家居空间,用设计引导和改变生活态度

预约设计师

算算你家装修多少钱

报名即享丰厚赠品,享半价装修

免费报价
咨询热线:400-656-9909
20190221103704574636.jpg

精品设计案例

20180612134930523248.jpg 服务号二维码.jpg