立即预约 立即预约
免费定制整装家居

免费定制整装家居

一站置家 全程无忧 一省到底
hide.png

当前位置: 首页 > 装修案例效果图 > 金地铁西檀府

金地铁西檀府 137平 美式风格效果图

收藏
案例风格 美式 案例户型 四居 案例面积 137平米
楼盘名称 金地铁西檀府 设计师 邵丹 案例类型 改善性住宅

设计理念:美式传统崇尚自由与民主,他们强调自由自在,随意的不羁的生活方式,而这些也在不经意间成就了另一种浪漫的休闲方式。所以美式风格设计上迎合着这些元素下的资本主义者对生活方式的需求就有独特的设计风格,即:有文化感丶有贵气感,自由自在感与情调。

客厅
第1张
第2张
第3张
第4张
餐厅
第1张
卧室
第1张
卫生间
第1张
厨房
第1张
阳台
第1张
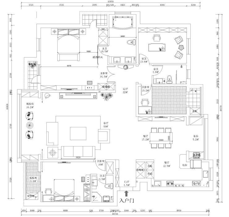
户型图
第1张
  • 案例详情

铁西金地檀府-137平-美式风格-客厅 (5).jpg 铁西金地檀府-137平-美式风格-客厅.jpg 铁西金地檀府-137平-美式风格-客厅 (2).jpg 铁西金地檀府-137平-美式风格-客厅 (3).jpg

客厅的装修风格,客厅作为待客区域,一般要求简洁明快,同时装修较其它空间要更明快光鲜,此客厅使用暖色的地砖,皮质的沙发, ,总体而言,田园风格的客厅是宽敞而富有历史气息的。

铁西金地檀府-137平-美式风格-餐厅.jpg

餐厅强调自由自在,随意的不羁的生活方式,而这些也在不经意间成就了另一种浪漫的休闲方式。所以美式风格设计上迎合着这些元素下的资本主义者对生活方式的需求就有独特的设计风格,即:有文化感丶有贵气感,自由自在感与情调。

铁西金地檀府-137平-美式风格-卧室.jpg 铁西金地檀府-137平-美式风格-卫生间.jpg

美式家居的简单实用,但软装颇为丰富,各种象征主人过去生活经历的陈设一应俱全,被翻卷边的古旧书籍、颜色发黄的航海地图、乡村风景的油画、一支鹅毛笔……即使是装饰品,这些东西也足以为书房的美式风格加分。

铁西金地檀府-137平-美式风格-厨房.jpg

厨房在人们眼中一般是开敞的(由于其饮食烹饪习惯),同时需要有一个便餐台在厨房的一隅,还要具备功能强大又简单耐用的厨具设备,如水槽下的残渣粉碎机,烤箱等。需要有容纳双开门冰箱的宽敞位置和足够的操作台面。在装饰上也有很多讲究,如喜好仿古面的墙砖、橱具门板喜好用实木门扇或是白色模压门扇仿木纹色。

铁西金地檀府-137平-美式风格-阳台.jpg 铁西金地檀府-137平-美式风格-平面图.jpg

案例设计师

邵丹

设计师:邵丹

从业时间:8年

设计理念:细节决定品质。

预约设计师

算算你家装修多少钱

报名即享丰厚赠品,享半价装修

免费报价
咨询热线:400-656-9909
20190221103704574636.jpg

精品设计案例

20180612134930523248.jpg 服务号二维码.jpg