立即预约 立即预约
免费定制整装家居

免费定制整装家居

一站置家 全程无忧 一省到底
hide.png

当前位置: 首页 > 装修案例效果图 > 玉祥名居

玉祥名居 113平 中式风格效果图

收藏
案例风格 中式 案例户型 三居 案例面积 113平米
楼盘名称 玉祥名居 设计师 邵丹 案例类型 改善性住宅

设计理念:现代中式风格不同于传统的中式风格设计,传统的中式风格设计融合了庄重与优雅的双重气质,但是现代中式风格的设计更多是里用现代的设计理念。从而将传统的中式风格以现代化的理念来重新组装,以另一种独特的名族符号来体现。

客厅
第1张
第2张
第3张
第4张
餐厅
第1张
卧室
第1张
第2张
卫生间
第1张
门厅
第1张
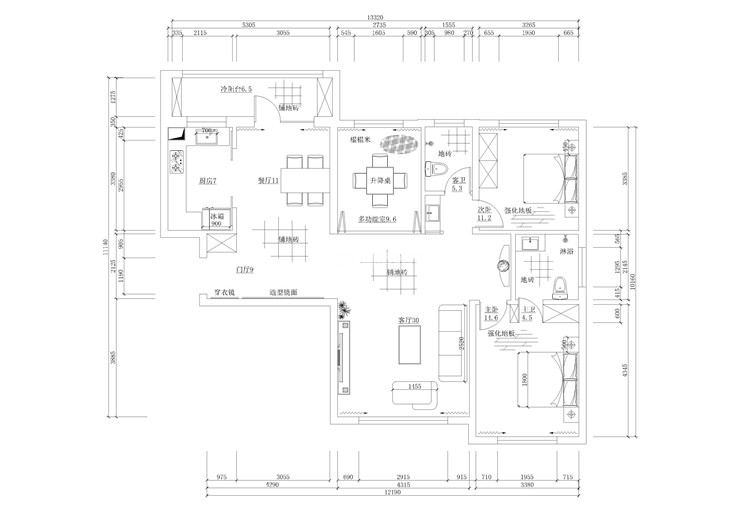
户型图
第1张
  • 案例详情

玉祥明居-113平-现代中式风格-客厅 (4).jpg 玉祥明居-113平-现代中式风格-客厅.jpg 玉祥明居-113平-现代中式风格-客厅 (2).jpg 玉祥明居-113平-现代中式风格-客厅 (3).jpg

客厅采用中式风格的家具体现出了对于现代化的设计形式,传统古典型的空间以典雅、大气的设计为主,理石背景墙衬托重视的硬朗,古木色的沙发,更添中式韵味.现代中式风格的设计也遵循着对称性的家具摆放,同时在古典形式的家具中采用现代感的设计形式,得以体现出时尚、简约的设计形式。

玉祥明居-113平-现代中式风格-餐厅.jpg

餐厅的中式挂画,现代中式的家具,凸现出独特的中式特点, 中式风格的家具和饰品往往颜色较为深沉,但是现代中式风格的颜色搭配上就较为简约。米黄色地面,又更显温馨古朴。

玉祥明居-113平-现代中式风格-主卧室.jpg 玉祥明居-113平-现代中式风格-卧室.jpg

卧室选用深沉的颜色衬托氛围,床头使用一些图案简练饰品搭配,使空间也不那么过于复杂、繁琐 。

玉祥明居-115平-现代中式风格-卫生间1副本.jpg

卫生间柔和的仿古瓷砖,极具中式风格的特点,不张扬,低调极致。显现主人翁的成熟稳重。

玉祥明居-113平-现代中式风格-门厅.jpg 玉祥明居-113平-现代中式风格-平面图.jpg

案例设计师

邵丹

设计师:邵丹

从业时间:8年

设计理念:细节决定品质。

预约设计师

算算你家装修多少钱

报名即享丰厚赠品,享半价装修

免费报价
咨询热线:400-656-9909
20190221103704574636.jpg

精品设计案例

20180612134930523248.jpg 服务号二维码.jpg