立即预约 立即预约
免费定制整装家居

免费定制整装家居

一站置家 全程无忧 一省到底
hide.png

当前位置: 首页 > 装修案例效果图 > 富力尚悦居

富力尚悦居 70平 现代简约风格效果图

收藏
案例风格 现代简约 案例户型 二居 案例面积 70平米
楼盘名称 富力尚悦居 设计师 林凤装饰设计师 案例类型 婚房

设计理念:本案以温馨、实用的现代风格为主要设计手法,营造两口幸福之家。

客厅
第1张
第2张
第3张
餐厅
第1张
第2张
卧室
第1张
第2张
卫生间
第1张
第2张
厨房
第1张
第2张
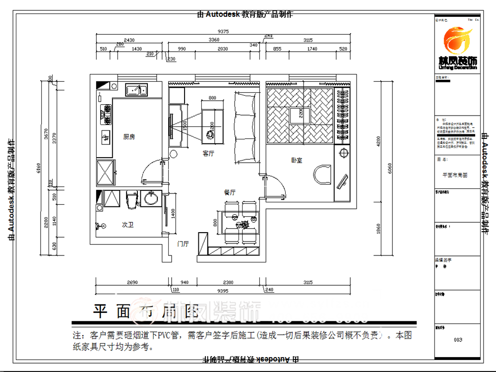
户型图
第1张
  • 案例详情

富力尚悦居-70平-现代风格-客厅 (2).jpg 富力尚悦居-70平-现代风格-客厅.jpg 富力尚悦居-70平-现代风格-客厅 (3).jpg

客厅的设计并没有做太多造型类设计,而是在墙面采用了简单的乳胶漆调色,搭配简单的布艺组合沙发,地面选用原木色作为地板,给整个空间带来营造温馨的气氛

富力尚悦居-70平-现代风格-餐厅 (2).jpg 富力尚悦居-70平-现代风格-餐厅.jpg

线条个性的现代餐桌,不拘一格的设计理念,使得整个餐厅充满现代的气息,餐桌旁的靠墙几,使得整个餐厅舒心浪漫地气息。

富力尚悦居-70平-现代风格-卧室.jpg 富力尚悦居-70平-现代风格-卧室 (2).jpg

在设计主卧室的时候 因为考虑到需要储物空间,所以卧室选用地台榻榻米,在合理的情况下把床和衣柜还有电脑桌轻松的组合在一起,既呈现了整体定制颜色搭配上的效果,有突出了墙面书架隔板的实用性,活泼又贴近自然,让定制的现代家具增添了几分 新意

富力尚悦居-70平-现代风格-卫生间1.jpg 富力尚悦居-70平-现代风格-卫生间.jpg

卫生间墙砖选择淡灰色瓷砖。与干净的白色洁具百分之百完美贴合,干净有明亮。

富力尚悦居-70平-现代风格-厨房.jpg 富力尚悦居-70平-现代风格-厨房 (2).jpg

厨房的砖选择白色抛釉,地面地砖的白色和墙砖的颜色达成一致,充分利用了对空间的处理来引导视觉的延伸,这样不仅从心理上达到扩大视觉空间的效果,还让整个空间保持了空前的统一。

富力尚悦居-70平-现代风格-户型图.png

案例设计师

林凤装饰设计师

设计师:林凤装饰设计师

从业时间:5年

设计理念:持之以恒的学习是设计的来源,责任感是是原则.而灵感是设计的升华

预约设计师

算算你家装修多少钱

报名即享丰厚赠品,享半价装修

免费报价
咨询热线:400-656-9909
20190221103704574636.jpg

精品设计案例

20180612134930523248.jpg 服务号二维码.jpg