立即预约 立即预约
免费定制整装家居

免费定制整装家居

一站置家 全程无忧 一省到底
hide.png

当前位置: 首页 > 装修案例效果图 > 华润橡树湾

华润橡树湾 92平 现代简约风格效果图

收藏
案例风格 现代简约 案例户型 二居 案例面积 92平米
楼盘名称 华润橡树湾 设计师 林凤设计师 案例类型 改善性住宅

设计理念:设计师打破原有设计格局将原有标准户型做了整体性改变,再通过家具的壁柜橱柜跟吊顶的简体设计,让整体空间感觉简约而又不简单,空间整体感墙,让户型感觉由小变大。

客厅
第1张
第2张
第3张
第4张
第5张
餐厅
第1张
卧室
第1张
门厅
第1张
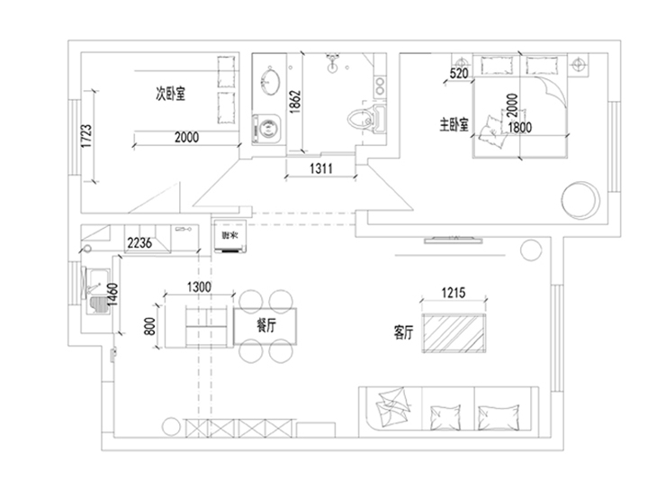
户型图
第1张
  • 案例详情

李永翠-华润橡树湾92㎡现代风格-客厅 (1).jpg 李永翠-华润橡树湾92㎡现代风格-客厅 (3).jpg 李永翠-华润橡树湾92㎡现代风格-客厅 (2).jpg 李永翠-华润橡树湾92㎡现代风格-客厅 (5).jpg 李永翠-华润橡树湾92㎡现代风格-客厅 (6).jpg

搭配上采用温暖的材质、柔软的沙发,传达出舒适安逸的感觉,因为整体客厅朝西,光线不算充足,所以采用浅淡色系。

李永翠-华润橡树湾92㎡现代风格-餐厅.jpg 李永翠-华润橡树湾92㎡现代风格-厨房.jpg

厨房的封闭变成全开放,让家庭聚会的核心由客厅增加到厨房。让传统的制式设计变化成新颖的OPEN型格局,更加宽阔及放松。

李永翠-华润橡树湾92㎡现代风格-门厅.jpg 李永翠-华润橡树湾92㎡现代风格-户型图.jpg

案例设计师

林凤设计师

设计师:林凤设计师

从业时间:9年

设计理念:艺术里的炊烟 专业、走心、做生活化有品位设计 私人定制您的家居空间,用设计引导和改变生活态度

预约设计师

算算你家装修多少钱

报名即享丰厚赠品,享半价装修

免费报价
咨询热线:400-656-9909
20190221103704574636.jpg

精品设计案例

20180612134930523248.jpg 服务号二维码.jpg