立即预约 立即预约
免费定制整装家居

免费定制整装家居

一站置家 全程无忧 一省到底
hide.png

当前位置: 首页 > 装修案例效果图 > 阳光100

阳光100 120平 港式风格效果图

收藏
案例风格 港式 案例户型 三居 案例面积 120平米
楼盘名称 阳光100 设计师 林凤装饰设计师 案例类型 改善性住宅

设计理念:本案主要特别注意色彩的搭配整个空间全部为暖黄色,在整体选材上面,特别注重环保。深色软装突出重点。

客厅
第1张
第2张
餐厅
第1张
卧室
第1张
卫生间
第1张
厨房
第1张
门厅
第1张
第2张
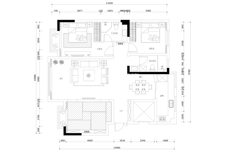
户型图
第1张
  • 案例详情

阳光一百-120平-港式-客厅电视背景墙.jpg 阳光一百-120平-港式-客厅.jpg

业主比较喜暖色系设计效果,喜欢港式风格独有的线条美感,整个客厅空间黄色的龙纹地砖交错铺贴使空间地面立体感强烈,配合上一部分色彩的家具让整个空间更加灵动,更加美感。

阳光一百-120平-港式-餐厅.jpg

餐厅设计让整体餐厅效果是比较大众化的整体感,对应棚面的效果显得更有空间感,另外旁边配上软装画饰会让整个餐厅更加丰富。

阳光一百-120平-港式-卧室.jpg

卧室的整体还是围绕港式元素的色彩装饰为主,突出休息空间的舒适度和整体效果。

阳光一百-120平-港式-卫生间.jpg

卫生间选择了土黄色系列理石纹理,纹理分明的瓷砖作为主题背景色,丰富元素的条纹设计更是卫生间的一大亮点,赋予了整个空间凹凸感的设计效果,让整体空间更加独特高档。

阳光一百-120平-港式-厨房.jpg

厨房采用300*600黄色龙纹纹理的瓷砖作为背景色,搭配上黄色效果十足的橱柜,让整体空间更好的跟整体风格完美融合,让主人在烹饪过程中自然的感到温馨愉悦。

阳光一百-120平-港式-玄关1.jpg 阳光一百-120平-港式-玄关.jpg 阳光一百-120平-港式-平面图.jpg

案例设计师

林凤装饰设计师

设计师:林凤装饰设计师

从业时间:10年

设计理念:设计是具有灵魂的。从生活出发,在生活中思考,让生活升华。实用与形式美感相互融合,满足功能需求及精神需求,使“家”这个私属空间更方便、更舒适、更个性、更能表达主人生活的态度。

预约设计师

算算你家装修多少钱

报名即享丰厚赠品,享半价装修

免费报价
咨询热线:400-656-9909
20190221103704574636.jpg

精品设计案例

20180612134930523248.jpg 服务号二维码.jpg