立即预约 立即预约
免费定制整装家居

免费定制整装家居

一站置家 全程无忧 一省到底
hide.png

当前位置: 首页 > 装修案例效果图 > 圣诺园

圣诺园 84平 北欧风格效果图

收藏
案例风格 北欧 案例户型 二居 案例面积 84平米
楼盘名称 圣诺园 设计师 李丹 案例类型 儿童房

设计理念:北欧的设计风格,让整体搭配效果味道更浓,北欧设计回归自然,崇尚原木韵味,.北欧的设计风格很适合现在繁华都市缺少的宁静、适合所需要的元素 ,浅色为代表,整体感舒适自然,同现代简约风格有着极大的相似。

客厅
第1张
第2张
第3张
第4张
餐厅
第1张
第2张
卧室
第1张
厨房
第1张
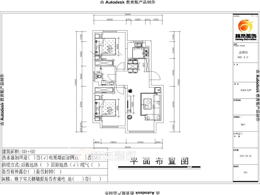
户型图
第1张
  • 案例详情

圣诺园-北欧风格-84平-客厅4.jpg 圣诺园-北欧风格-84平-客厅2.jpg 圣诺园-北欧风格-84平-客厅3.jpg 圣诺园-北欧风格-84平-客厅1.jpg

极简的客厅设计,然整体客厅的效果显着更加,简单大气,使整个客厅更加明亮,满足客厅宽敞,整洁,温馨的效果。

圣诺园-北欧风格-84平-餐厅1.jpg 圣诺园-北欧风格-84平-餐厅.jpg

简单的餐桌配上简约的鞋柜,让整体效果更加饱满一些,黑色的吊灯起到点缀的作用,餐厅是家居生活的心脏,不仅要美观,更重要的实用性,整体性。

圣诺园-北欧风格-84平-卧室.jpg

卧室是睡眠、休息的地方,而且也是最隐私的空间。因此,主卧室设计必须依据主人的年龄、性格、志趣爱好,考虑宁静稳重的或是浪漫舒适的情调,创造一个完全属于个人的温馨环境。

圣诺园-北欧风格-84平-厨房.jpg

白的的橱柜让卫生间更加干净明亮,为了使厨房显着不杂乱我门配上了简约的吊柜。

圣诺园-北欧风格-84平-户型图.jpg

案例设计师

李丹

设计师:李丹

从业时间:5年

设计理念:用我的专业和你的想法,打造专业的家

预约设计师

算算你家装修多少钱

报名即享丰厚赠品,品质装修

免费报价
咨询热线:400-656-9909
20190221103704574636.jpg

精品设计案例

20180612134930523248.jpg 服务号二维码.jpg