立即预约 立即预约
免费定制整装家居

免费定制整装家居

一站置家 全程无忧 一省到底
hide.png

当前位置: 首页 > 装修案例效果图 > 龙湖西府原著

龙湖西府原著 120平 现代简约风格效果图

收藏
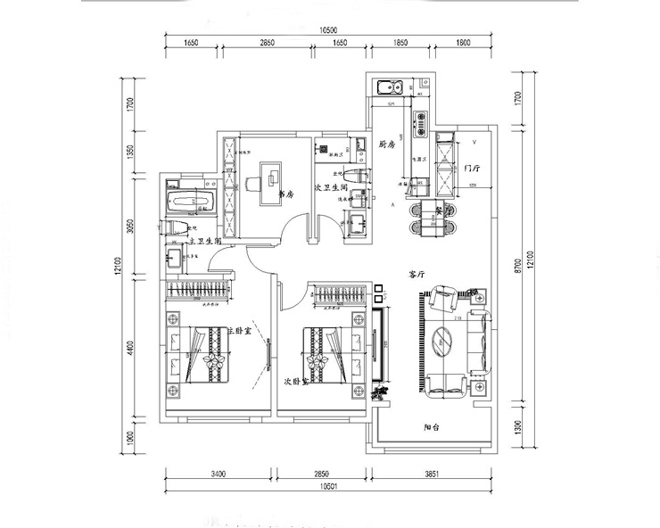
案例风格 现代简约 案例户型 三居 案例面积 120平米
楼盘名称 龙湖西府原著 设计师 李丹 案例类型 改善性住宅

设计理念:龙湖西府原著 120平 现代风格

客厅
第1张
第2张
第3张
第4张
卧室
第1张
卫生间
第1张
门厅
第1张
第2张
户型图
第1张
  • 案例详情

龙湖西府原著-120平-现代风格-客厅 (4).jpg 龙湖西府原著-120平-现代风格-客厅 (2).jpg 龙湖西府原著-120平-现代风格-客厅.jpg 龙湖西府原著-120平-现代风格-电视背景墙.jpg 龙湖西府原著-120平-现代风格-卧室.jpg 龙湖西府原著-120平-现代风格-卫生间.jpg 龙湖西府原著-120平-现代风格-玄关 (2).jpg 龙湖西府原著-120平-现代风格-玄关.jpg 平面布置图.jpg

案例设计师

李丹

设计师:李丹

从业时间:5年

设计理念:用我的专业和你的想法,打造专业的家

预约设计师

算算你家装修多少钱

报名即享丰厚赠品,享半价装修

免费报价
咨询热线:400-656-9909
20190221103704574636.jpg

精品设计案例

20180612134930523248.jpg 服务号二维码.jpg