立即预约 立即预约
免费定制整装家居

免费定制整装家居

一站置家 全程无忧 一省到底
hide.png

当前位置: 首页 > 装修案例效果图 > 金地名悦

金地名悦 145平 现代简约风格效果图

收藏
案例风格 现代简约 案例户型 三居 案例面积 145平米
楼盘名称 金地名悦 设计师 李承成 案例类型 儿童房

设计理念:现代轻奢风格不同于传统的现代风格设计,融合了庄重与优雅的双重气质,并且现代轻奢风格的设计更多是体现在材质和色彩及软装的搭配上。从而将传统的装修风格以现代化的理念来重新组装,以另一种独特的名族符号来体现。

客厅
第1张
第2张
餐厅
第1张
第2张
卧室
第1张
第2张
第3张
厨房
第1张
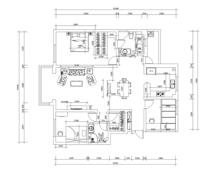
户型图
第1张
  • 案例详情

金地名悦-145平-轻奢-客厅2.jpg 金地名悦-145平-轻奢-客厅1.jpg

客厅采用金属质感的家具体现出了对于现代化的设计形式,传统古典型的空间以典雅、大气的设计为主,高级灰背景墙衬托质感对比强烈的沙发,更添生活品味.现代轻奢风格的设计也遵循着对称性的家具摆放,同时在新古典形式的家具中采用现代感的设计形式,得以体现出时尚、简约的设计形式。

金地名悦-145平-轻奢-餐厅2.jpg 金地名悦-145平-轻奢-餐厅1.jpg

餐厅的形象背景墙凸现出独特的特点,家具和饰品在颜色搭配上就较为简约。灰色地面,又更显高端大气。

金地名悦-145p平-轻奢-次卧.jpg 金地名悦-145p平-轻奢-卧室1.jpg 金地名悦-145p平-轻奢-卧室2.jpg

卧室背景墙选用金属与硬包衬托氛围,使用一些图案简练饰品搭配,使空间也不那么过于复杂、繁琐 。

金地名悦-145平-轻奢-厨房.jpg

厨房咖色的橱柜搭配浅灰色的墙砖,整体凸显现代轻奢风格,与整体风格相搭配相和谐。

金地名悦-145p平-轻奢-平面布置图.jpg

案例设计师

李承成

设计师:李承成

从业时间:15年

设计理念:细节决定品质。

预约设计师

算算你家装修多少钱

报名即享丰厚赠品,品质装修

免费报价
咨询热线:400-656-9909
20190221103704574636.jpg

精品设计案例

20180612134930523248.jpg 服务号二维码.jpg