立即预约 立即预约
免费定制整装家居

免费定制整装家居

一站置家 全程无忧 一省到底
hide.png

当前位置: 首页 > 装修案例效果图 > 中航城

中航城 123平 美式风格效果图

收藏
案例风格 美式 案例户型 三居 案例面积 123平米
楼盘名称 中航城 设计师 李承成 案例类型 儿童房

设计理念:现代简美的设计,创作层次比较高。在考虑其设计的时候,它强调的是一种舒适与实用,比较注重于追求材料、技术、空间的表现。所以现代简美风格的设计师具有较高的设计素养与实践经验。

客厅
第1张
第2张
餐厅
第1张
卧室
第1张
第2张
第3张
卫生间
第1张
过廊
第1张
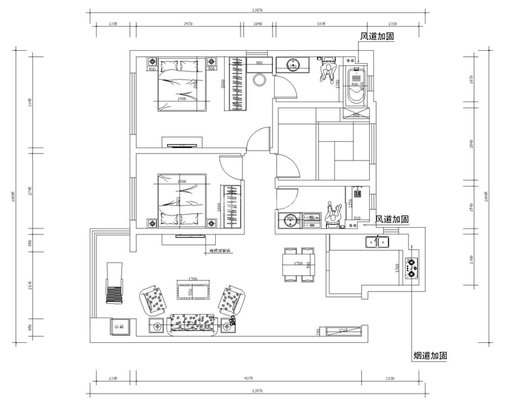
户型图
第1张
  • 案例详情

中航两河流域-123平-法式-客厅2.jpg 中航两河流域-123平-法式-客厅1.jpg

客厅是整个空间的重点,所以在客厅墙面的材质上选用了调色乳胶漆,用石膏广线做背景墙加以点缀,能更加衬托出整个空间的简约的现代美感。

中航两河流域-123平-法式-餐厅.jpg

因为餐厅的空间没有划分,用天花吊顶划分空间,使整个空间看上去更加的明朗,加上软隔断的装饰使空间增加延伸感。

中航两河流域-123平-法式-卧室2.jpg 中航两河流域-123平-法式-卧室1.jpg 中航两河流域-123平-法式-次卧.jpg

卧室是休息的地方,所以就没有做过多装饰,背景墙上用装饰画点缀,让人看起来放松有舒适。

中航两河流域-123平-法式-卫生间.jpg

卫生间的设计上延续风格特点,用仿理石墙砖装饰,显得干净大方,高端大气。

中航两河流域-123平-法式-走廊.jpg 中航两河流域-123平-法式-平面布置图.jpg

案例设计师

李承成

设计师:李承成

从业时间:15年

设计理念:细节决定品质。

预约设计师

算算你家装修多少钱

报名即享丰厚赠品,品质装修

免费报价
咨询热线:400-656-9909
20190221103704574636.jpg

精品设计案例

20180612134930523248.jpg 服务号二维码.jpg