立即预约 立即预约
免费定制整装家居

免费定制整装家居

一站置家 全程无忧 一省到底
hide.png

当前位置: 首页 > 装修案例效果图 > 中海和平之门

中海和平之门 145平 北欧风格效果图

收藏
案例风格 北欧 案例户型 三居 案例面积 145平米
楼盘名称 中海和平之门 设计师 林凤设计师 案例类型 改善性住宅

设计理念:客厅采用的是米黄色的地转,顶棚就是四周走一圈边棚,为了突出北欧的风格效果,所以边棚不设有虚光等待,淡蓝色的乳胶漆墙面是整体感觉干净清爽,显得自然而不普通,电视背景墙选择突出造型,虽然占用室内空间,但是整体搭配得体不会给人一种特别的压抑感,白色的表面给空间显得明亮。

客厅
第1张
第2张
第3张
第4张
餐厅
第1张
卧室
第1张
卫生间
第1张
厨房
第1张
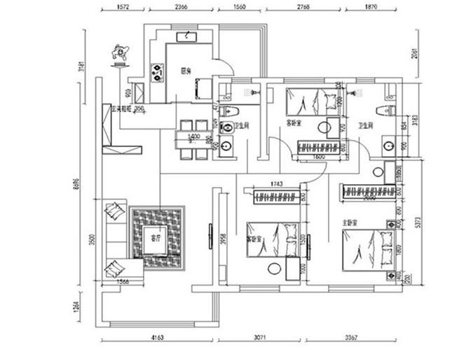
户型图
第1张
  • 案例详情

中海和平之门-145平-北欧风格-客厅4.jpg 中海和平之门-145平-北欧风格-客厅1.jpg 中海和平之门-145平-北欧风格-客厅2.jpg 中海和平之门-145平-北欧风格-客厅3.jpg

客厅采用的是米黄色的地转,顶棚就是四周走一圈边棚,为了突出北欧的风格效果,所以边棚不设有虚光等待,淡蓝色的乳胶漆墙面是整体感觉干净清爽,显得自然而不普通,电视背景墙选择突出造型,虽然占用室内空间,但是整体搭配得体不会给人一种特别的压抑感,白色的表面给空间显得明亮。

中海和平之门-145平-北欧风格-餐厅.jpg

餐厅也是突出表现装饰风格,背景墙与客厅相呼应,搭配简单的餐桌组合,在灯光的映衬下格外突出了风格效果,使得餐厅显得即自然又高贵。

中海和平之门-145平-北欧风格-主卧室.jpg 中海和平之门-145平-北欧风格-卫生间.jpg

卫生间利用墙地砖色彩的差异,体现出更强的空间感,简单的木质浴室柜和浴屏的配合,使得卫生间更显干净和大气。

中海和平之门-145平-北欧风格-厨房.jpg 中海和平之门-145平-北欧风格-平面图.jpg

案例设计师

林凤设计师

设计师:林凤设计师

从业时间:12年

设计理念:安静,舒心,健康,艺术与美。

预约设计师

算算你家装修多少钱

报名即享丰厚赠品,品质装修

免费报价
咨询热线:400-656-9909
20190221103704574636.jpg

精品设计案例

20180612134930523248.jpg 服务号二维码.jpg