立即预约 立即预约
免费定制整装家居

免费定制整装家居

一站置家 全程无忧 一省到底
hide.png

当前位置: 首页 > 装修案例效果图 > 医科大学家属楼

医科大学家属楼 240平 新中式风格效果图

收藏
案例风格 新中式 案例户型 复式 案例面积 240平米
楼盘名称 医科大学家属楼 设计师 林凤设计师 案例类型 改善性住宅

设计理念:本案是医科大学家属楼,对这次方案我的设计风格是新中式。根据客户的要求,在设计上以新中式和传统中式相结合。

客厅
第1张
第2张
第3张
餐厅
第1张
卧室
第1张
卫生间
第1张
厨房
第1张
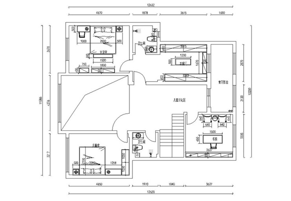
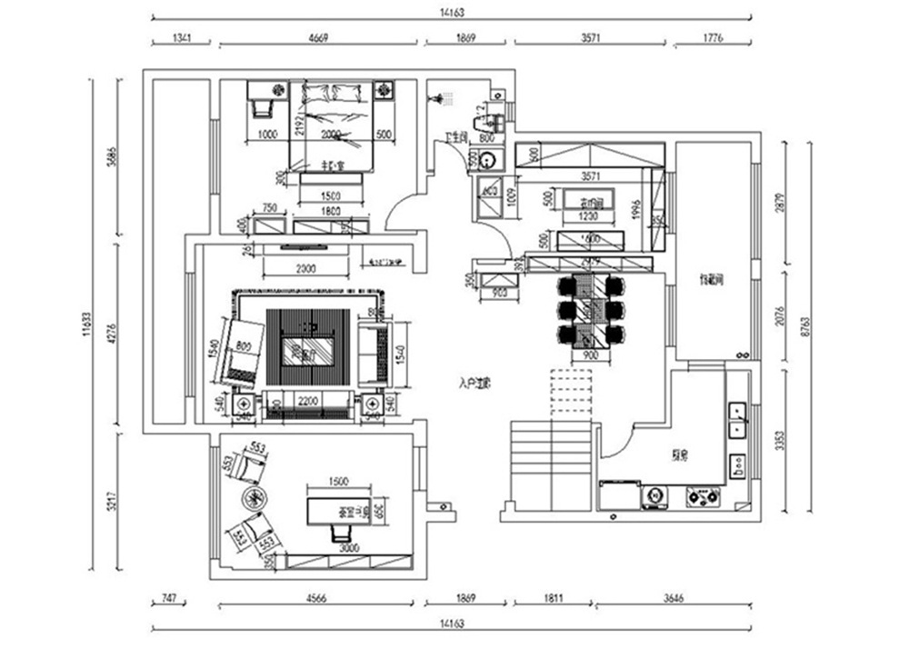
户型图
第1张
第2张
  • 案例详情

医大家属楼-240平-新中式风格-客厅3.jpg 医大家属楼-240平-新中式风格-客厅1.jpg 医大家属楼-240平-新中式风格-客厅2.jpg

客厅区域为挑空结构,一楼为业主夫妻二人的主要生活区域,所以根据客户要求在两侧背景墙方面着重设计,电视背景墙采用地砖上墙和护墙板结合,达到突出挑空背景墙效果,沙发背景墙采用业喜欢的山水画点缀,地面地砖穿边处理,中规中矩,突出中式元素,整体以黑色新中式家具搭配,低调简单。

医大家属楼-240平-新中式风格-餐厅.jpg

餐厅内嵌多功能边柜,酒架展示柜储藏柜相结合,结合中式挂画和摆件,使餐厅简单大气。

医大家属楼-240平-新中式风格-卧室.jpg 医大家属楼-240平-新中式风格-卫生间.jpg

卫生间利用暖色瓷砖,实木浴室柜,金色复古花洒,多方面元素相搭配,将小空间更突出体现出中式风格效果。

医大家属楼-240平-新中式风格-厨房.jpg 医大家属楼-240平-新中式风格-二楼平面图.jpg 医大家属楼-240平-新中式风格-一楼平面图.jpg

案例设计师

林凤设计师

设计师:林凤设计师

从业时间:12年

设计理念:安静,舒心,健康,艺术与美。

预约设计师

算算你家装修多少钱

报名即享丰厚赠品,享半价装修

免费报价
咨询热线:400-656-9909
20190221103704574636.jpg

精品设计案例

20180612134930523248.jpg 服务号二维码.jpg