立即预约 立即预约
免费定制整装家居

免费定制整装家居

一站置家 全程无忧 一省到底
hide.png

当前位置: 首页 > 装修案例效果图 > 雅宾利花园

雅宾利花园 130平 美式风格效果图

收藏
案例风格 美式 案例户型 三居 案例面积 130平米
楼盘名称 雅宾利花园 设计师 林凤装饰设计师 案例类型 改善性住宅

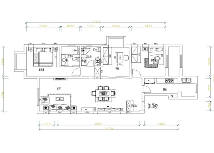
设计理念:本案是三室两厅一厨两卫的户型,是全明户型,采光较好,但户型的缺点是电视背景墙较短,主卧室没有放衣柜的收纳空间,书房与电视背景墙的一面墙较长,设计起来比较单调,而且会导致餐厅区域的采光不是很好,为了解决这些缺点,根据业主的居住环境,生活环境,对原有的房屋格局进行改造,利用吊顶,软装等方式进行空间分区,提高户型的利用率。

客厅
第1张
第2张
第3张
第4张
第5张
餐厅
第1张
第2张
卧室
第1张
卫生间
第1张
厨房
第1张
户型图
第1张
  • 案例详情

雅宾利花园-130㎡-简美-客厅(5).jpg 雅宾利花园-130㎡-简美-客厅(2).jpg 雅宾利花园-130㎡-简美-客厅(1).jpg 雅宾利花园-130㎡-简美-客厅(3).jpg 雅宾利花园-130㎡-简美-客厅(4).jpg

客厅作为待客区域,业主要求设计上要凸显业主的品味,要有美式的文化感,本案客厅地面选用仿古地砖,电视背景墙巧用壁炉造型搭配文化石的设计,通过这些仿旧的材质凸显美式的历史感。客厅的实木梁和沙发背景墙的设计增添了美式风格的大气与贵气感,整个客厅的沙发组合与装饰挂画,软装饰品摆件,都体现了业主的品味,也体现了业主对美式自由不羁的生活方式的向往与追求。

雅宾利花园-130㎡-简美-餐厅 (2).jpg 雅宾利花园-130㎡-简美-餐厅 (1).jpg

餐厅通过棚面的设计把餐厅区域划分的清晰有致,餐厅背景墙采用酒柜做装,而且也有实用性,使餐厅空间显得温馨,浪漫。餐厅对面原来是书房的一面建筑墙体,通过拆改后做成了书房的移门,这样的设计增加了餐厅区域的采光,通透感也更好了。

雅宾利花园-130㎡-简美-卧室(1).jpg

卧室布置较为温馨,作为主人的私密空间,主要以实用舒适为考虑重点,床头对比色的壁纸调节了卧室的单调气氛,柔软的布艺增添了温馨感。

雅宾利花园-130㎡-简美-卫生间(1).jpg

卫生间墙地砖选择淡淡的灰色瓷砖,时尚温馨,洁具选用樱桃红深色实木浴室柜,淋浴区选用浴屏做干湿分离,打造一个纯净,高档的卫浴空间。

雅宾利花园-130㎡-简美-厨房(1).jpg

厨房主要淡黄色瓷砖配上实木橱柜,搭配灰白色的吊顶,在色调上给业主营造了一种深沉,含蓄的感觉,又便于打理。

雅宾利花园-130㎡-简美-平面布置图.jpg

案例设计师

林凤装饰设计师

设计师:林凤装饰设计师

从业时间:9年

设计理念:设计在于对空间尺寸和功能的合理安排,而非杂乱的造型堆砌。

预约设计师

算算你家装修多少钱

报名即享丰厚赠品,享半价装修

免费报价
咨询热线:400-656-9909
20190221103704574636.jpg

精品设计案例

20180612134930523248.jpg 服务号二维码.jpg