立即预约 立即预约
免费定制整装家居

免费定制整装家居

一站置家 全程无忧 一省到底
hide.png

当前位置: 首页 > 装修案例效果图 > 绿地海域香廷|现代风格

绿地海域香廷|现代风格 240平 现代简约风格效果图

收藏
案例风格 现代简约 案例户型 四居 案例面积 240平米
楼盘名称 绿地海域香廷 设计师 陆旭 案例类型 改善性住宅

设计理念:本案以现代简约风格出发,注重空间的布局与使用功能的完美结合,发挥结构构成本身的形式美,造型简洁,搭配上舒适自然的家居布置,棕色的细节点缀让空间更加高级大气,营造出一种轻松自然的氛围。

客厅
第1张
第2张
卧室
第1张
卫生间
第1张
儿童房
第1张
休闲区
第1张
第2张
第3张
第4张
第5张
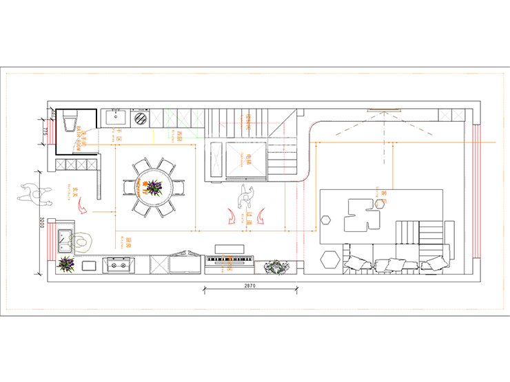
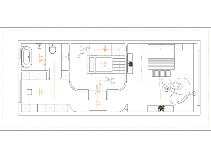
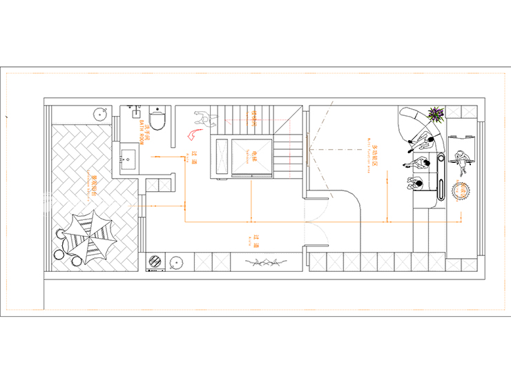
户型图
第1张
第2张
第3张
第4张
客厅.jpg 首图.jpg

客厅作为待客区域,以高级明快的设计风格为主调,同时装修较其它空间要更明快光鲜,进深感强。本案户型客厅空间宽敞,电视背景墙采用岩板做了简单的造型,既简单又大方,配上顶部的灯光 ,整个电视背景墙把客厅提升起来,空间开敞,内外通透,设计简单,通俗,更接近人们生活

次卧.jpg

卧室整体空间以深灰色调为基础,床头背景运用了实木板材,从而营造一个现代化简单舒适的主卧空间,低饱和呈现出高品质的生活气息。空间利用率高不显得空旷。

卫生间.jpg

卫生间整体采用整砖铺贴,配合灯光更显宽敞,将空间划分明确,实用性强,简洁明了。相互使用不受影响,整体光源充足。

儿童房.jpg 2楼楼梯间.jpg 4楼楼梯间.jpg 多功能室.jpg 露台.jpg 梳妆台.jpg 二楼平面图.jpg 三楼平面图.jpg 一楼平面图.jpg 四楼平面图.jpg

案例设计师

陆旭

设计师:陆旭

从业时间:12年

设计理念:懂生活 爱生活 享受生活 才能设计好一个每天生活的地方

预约设计师

算算你家装修多少钱

报名即享丰厚赠品,品质装修

免费报价
咨询热线:400-656-9909
20190221103704574636.jpg

精品设计案例

20180612134930523248.jpg 服务号二维码.jpg