立即预约 立即预约
免费定制整装家居

免费定制整装家居

一站置家 全程无忧 一省到底
hide.png

当前位置: 首页 > 装修案例效果图 > 九州御府

九州御府 95平 现代简约风格效果图

收藏
案例风格 现代简约 案例户型 二居 案例面积 95平米
楼盘名称 九州御府 设计师 全案整装 案例类型 婚房

设计理念:简约的空间设计通常是非常含蓄的,往往能达到以少胜多、以简胜繁的效果.简约风格通常是以简洁的表现形式来满足人们对空间环境那种感性的、本能的和理性的需求,也是当今社会流行的一种设计风格,又称之为简约主义。

客厅
第1张
第2张
第3张
第4张
卧室
第1张
第2张
卫生间
第1张
厨房
第1张
户型图
第1张
  • 案例详情

刘媛媛-九州御府-韩先生95平现代-客厅.jpg 刘媛媛-九州御府-韩先生95平现代-客厅1.jpg 刘媛媛-九州御府-韩先生95平现代-客厅2.jpg 刘媛媛-九州御府-韩先生95平现代-客厅3.jpg

客厅是整体家居的主体,深咖色的沙发在奶白色墙面的归映衬下更加醒目,电视背景大部分墙面搭配碎花壁纸,巧妙的把电视背景包围.墙面分别装点几幅黑白小画使得整个空间更加艺术.

刘媛媛-九州御府-韩先生95平现代-次卧.jpg 刘媛媛-九州御府-韩先生95平现代-主卧.jpg

以光线柔和,色调温馨的主题卧室,深咖色墙纸在大部分米色墙纸围绕下更加有个,浅绿的抱枕在暖色床头小灯的照耀下更温馨.简单净版的纱帘透过一丝柔柔的光线,宁静中多一分温暖与浪漫。

刘媛媛-九州御府-韩先生95平现代-卫生间.jpg

深灰色的装饰墙砖在米白色的座便的映衬下更加的有个性,极致个性的浴室柜在整面浴室镜的映射下更有唯美有气质,独立的淋浴房把整个浴室分配的精致而紧密.

刘媛媛-九州御府-韩先生95平现代-厨房.jpg

本案设计的厨房,为了更加合理,适用于生活,采光更好,整体墙面使用四扇大拉门,扩大门洞面积。橱柜选用镜面板饰面的整体橱柜,更好的打造了一个现代化的厨房空间。

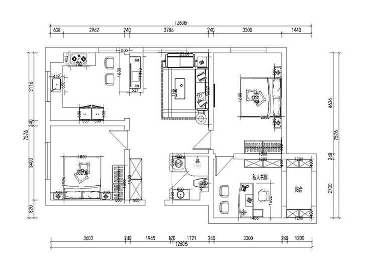
刘媛媛-九州御府-韩先生95平现代-户型图.jpg

案例设计师

全案整装

设计师:全案整装

从业时间:20年

设计理念:美而不虚,华而不俗,在有限的空间,创造无限的可能。

预约设计师

算算你家装修多少钱

报名即享丰厚赠品,享半价装修

免费报价
咨询热线:400-656-9909
20190221103704574636.jpg

精品设计案例

20180612134930523248.jpg 服务号二维码.jpg