立即预约 立即预约
免费定制整装家居

免费定制整装家居

一站置家 全程无忧 一省到底
hide.png

当前位置: 首页 > 装修案例效果图 > 华沃.滨河湾|法式复古

华沃.滨河湾|法式复古 131平 其他风格效果图

收藏
案例风格 其他 案例户型 四居 案例面积 131平米
楼盘名称 华沃.滨河湾 设计师 王松 案例类型 改善性住宅

设计理念:因生活而设计,因设计而完美。

华沃滨河湾-150平-轻法复古奶油风格-首图.jpg 华沃滨河湾-150平-轻法复古奶油风格-客厅.jpg 华沃滨河湾-150平-轻法复古奶油风格-客厅 (2).jpg

客厅采用了大面积的实木复合地板人字拼铺设,沙发、电视柜等采用深色和墙面的白色作为呼应、增加视觉效果,沙发背景墙采用法式线条和雕花,小面积刷绿色乳胶漆,给客厅增添了清新、活泼的氛围,使整个客厅更加优雅浪漫、增加整体性。

华沃滨河湾-150平-轻法复古奶油风格-餐厅.jpg 华沃滨河湾-150平-轻法复古奶油风格-次卧室 (2).jpg 华沃滨河湾-150平-轻法复古奶油风格-次卧室.jpg 华沃滨河湾-150平-轻法复古奶油风格-主卧室.jpg

主卧和客餐厅整体色调保持一致,使空间整体保持和谐自然的氛围,中古风的床头柜和斗橱等家具,增添了复古浪漫的法式元素,床头背景墙面雕花和奶咖配色,很好的糅合了整个环境的色差,错落有致,使整个卧室看起来更加浪漫和舒适,充满高级感。

华沃滨河湾-150平-轻法复古奶油风格-卫生间 (2).jpg 华沃滨河湾-150平-轻法复古奶油风格-主卫 (2).jpg 华沃滨河湾-150平-轻法复古奶油风格-卫生间.jpg 华沃滨河湾-150平-轻法复古奶油风格-主卫.jpg

两个卫生间都采用了金属门作为分隔,圆弧玻璃和卫浴的金色边框,把法式风格展现的淋漓尽致,主卫定制了整墙的大台面,收纳空间和操作空间都十分宽敞,搭配墙面贴600*1200MM瓷砖,使卫生间在视觉效果上看起来更宽敞大气,卫生间的整洁程度也获得了很大提升,极大地方便了房主生活中的日常起居。

华沃滨河湾-150平-轻法复古奶油风格-厨房 (3).jpg 华沃滨河湾-150平-轻法复古奶油风格-厨房.jpg 华沃滨河湾-150平-轻法复古奶油风格-厨房 (2).jpg

封闭式厨房,墙面浅色柔光砖和地面花砖相得益彰,法式橱柜柜门设计增加氛围感,浅色为主给人提供了休闲、轻松愉悦的环境,黑色柜门的地柜使整个房间颜色过渡十分舒服。

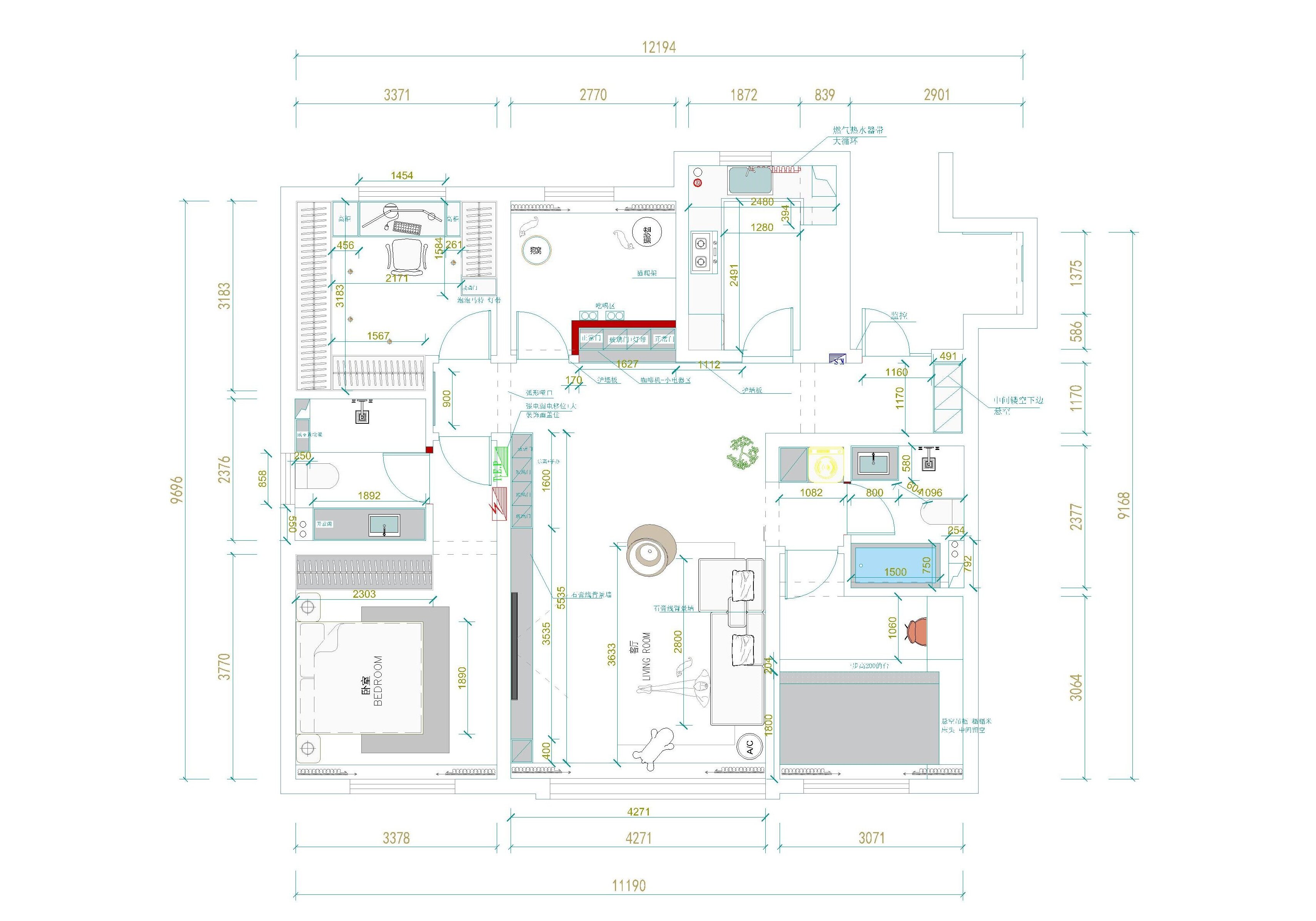
华沃滨河湾-150平-轻法复古奶油风格-衣帽间 (3).jpg 华沃滨河湾-150平-轻法复古奶油风格-衣帽间 (4).jpg 华沃滨河湾-150平-轻法复古奶油风格-衣帽间 (2).jpg 华沃滨河湾-150平-轻法复古奶油风格-衣帽间.jpg 华沃滨河湾-150平-轻法复古奶油风格-门厅.jpg 平面图.jpg

案例设计师

王松

设计师:王松

从业时间:10年

设计理念:品味生活,从家开始

预约设计师

算算你家装修多少钱

报名即享丰厚赠品,享半价装修

免费报价
咨询热线:400-656-9909
20190221103704574636.jpg

精品设计案例

20180612134930523248.jpg 服务号二维码.jpg