立即预约 立即预约
免费定制整装家居

免费定制整装家居

一站置家 全程无忧 一省到底
hide.png

当前位置: 首页 > 装修案例效果图 > 恒大天鹅湾|现代风格

恒大天鹅湾|现代风格 160平 现代简约风格效果图

收藏
案例风格 现代简约 案例户型 三居 案例面积 160平米
楼盘名称 恒大天鹅湾 设计师 全案整装 案例类型 儿童房

设计理念:好的设计 不会墨守成规 以人为本 充分让业主体验到好设计所带来的美好生活体验

客厅
第1张
第2张
餐厅
第1张
卧室
第1张
第2张
第3张
第4张
卫生间
第1张
第2张
厨房
第1张
衣帽间
第1张
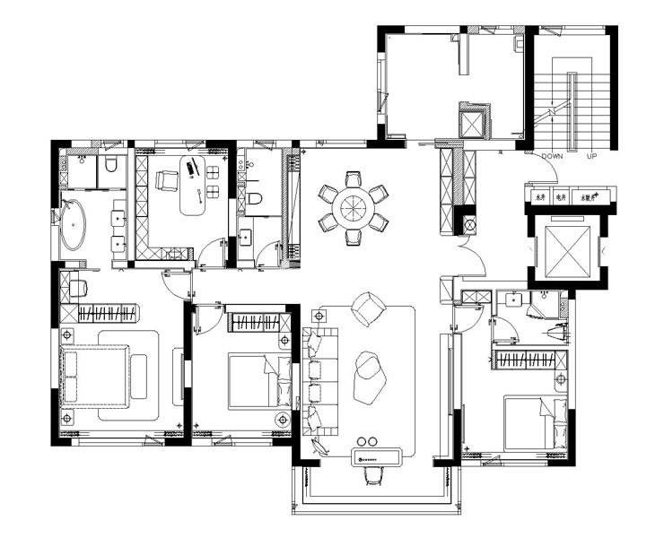
户型图
第1张
新世界卓铸-195平-意式极简-客厅首图.jpg 新世界卓铸-195平-意式极简-沙发背景.jpg

本案户型客厅属于常规开间户型,通过石膏线叠级工艺的设计,让整个空间更加宽敞大气,又不失温馨。又结合新型装饰灯,加强了空间的照明。

新世界卓铸-195平-意式极简-餐厅.jpg

本方案餐厅和厨房相邻,用餐桌划分空间,保证视野开阔性,敞开式的设计,让空间有了延伸感。还有设计了休闲区,在享受美食后有了一个放松身心的去处。通过餐边柜的设计,增加了物品的收纳空间。

新世界卓铸-195平-意式极简-客卧2.jpg 新世界卓铸-195平-意式极简-客卧1.jpg 新世界卓铸-195平-意式极简-主卧室2.jpg 新世界卓铸-195平-意式极简-主卧室.jpg

卧室的设计上,预留了2个南侧房间作为休息之处。将北侧的房间作为书房使用,为孩子的高考提供一切便利条件。

新世界卓铸-195平-意式极简-客卫1.jpg 新世界卓铸-195平-意式极简-客卫2.jpg

本方案的卫生间采用了干湿分离都手法。方便了人在固定时间段内对卫生间的需求。

新世界卓铸-195平-意式极简-厨房.jpg

厨房采用大块墙砖,显得大气,冰箱,厨房却不显得拥挤,U形橱柜与吊柜充分保证了空间的使用率,台面布置符合中国人习惯的“洗切炒”做饭流程。

新世界卓铸-195平-意式极简-主卧室衣帽间.jpg 新世界卓铸-195平-意式极简-平面布置图.jpg

案例设计师

全案整装

设计师:全案整装

从业时间:20年

设计理念:美而不虚,华而不俗,在有限的空间,创造无限的可能。

预约设计师

算算你家装修多少钱

报名即享丰厚赠品,享半价装修

免费报价
咨询热线:400-656-9909
20190221103704574636.jpg

精品设计案例

20180612134930523248.jpg 服务号二维码.jpg