立即预约 立即预约
免费定制整装家居

免费定制整装家居

一站置家 全程无忧 一省到底
hide.png

当前位置: 首页 > 装修案例效果图 > 会展一号|现代风格

会展一号|现代风格 93平 现代简约风格效果图

收藏
案例风格 现代简约 案例户型 二居 案例面积 93平米
楼盘名称 会展一号 设计师 刘沛天 案例类型 改善性住宅

设计理念:整体空间硬装,简单干净直爽
软装温柔,质感细腻高级
软硬装相互协调,色调统一

客厅
第1张
第2张
卧室
第1张
第2张
卫生间
第1张
第2张
厨房
第1张
过廊
第1张
第2张
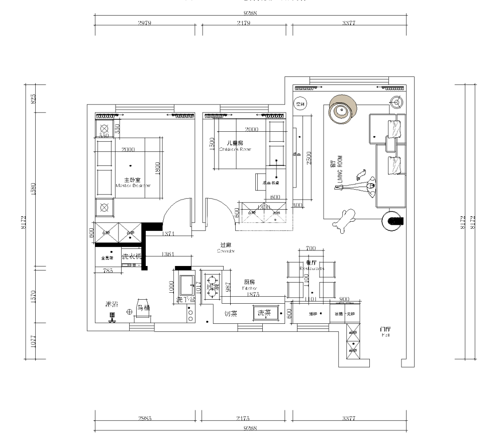
户型图
第1张
会展一号93㎡现代风格-客厅.jpg 会展一号93㎡现代风格-客厅1.jpg

暖灰色亮光地砖配套深色家具,深浅搭配

会展一号93㎡现代风格-次卧.jpg 会展一号93㎡现代风格-主卧.jpg

卧室套房形式,增加衣帽间功能

会展一号93㎡现代风格-卫生间.jpg 会展一号93㎡现代风格-卫生间1.jpg 会展一号93㎡现代风格-厨房.jpg

满足洗切炒的功能外,尽量储物多一些,开放式厨房配色与客厅衔接

会展一号93㎡现代风格-玄关.jpg 会展一号93㎡现代风格-过道.jpg 会展一号93㎡现代风格-平面图.png

案例设计师

刘沛天

设计师:刘沛天

从业时间:12年

设计理念:家,不是靠奢华取胜,而是在点滴的装饰中找到幸福。

预约设计师

算算你家装修多少钱

报名即享丰厚赠品,品质装修

免费报价
咨询热线:400-656-9909
20190221103704574636.jpg

精品设计案例

20180612134930523248.jpg 服务号二维码.jpg