立即预约 立即预约
免费定制整装家居

免费定制整装家居

一站置家 全程无忧 一省到底
hide.png

当前位置: 首页 > 装修案例效果图 > 亚太鲲鹏府|现代风格

亚太鲲鹏府|现代风格 92平 现代简约风格效果图

收藏
案例风格 现代简约 案例户型 二居 案例面积 92平米
楼盘名称 亚太鲲鹏府 设计师 赵春阳 案例类型 改善性住宅

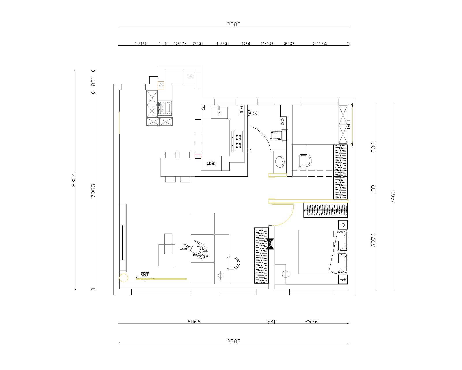
设计理念:客户是一家三口,本房型为三室一厨两卫的户型,根据客户的实际居住情况,本案取消一个卧室,改为大双厅,较小的北次卧改成榻榻米,既满足居住需求,又利用了这个小房间的功能性,客厅大开间双厅设计,使客厅看上去更整洁大气,客户对于厨房、主卧、客厅、都有自己独特的设计需求,结合整体家具沙发,棚顶简约设计,完成本案现代风格整体案例

客厅
第1张
第2张
餐厅
第1张
卧室
第1张
第2张
卫生间
第1张
厨房
第1张
户型图
第1张
_亚太鲲鹏府-92平现代风格-客厅 (2).jpg _亚太鲲鹏府-92平现代风格-客厅-首图.jpg

客户日常活动空间主要在客厅,保留原始大双厅,,整体增加客厅的舒适性,整洁性和空间性

_亚太鲲鹏府-92平现代风格-餐厅.jpg _亚太鲲鹏府-92平现代风格-次卧.jpg _亚太鲲鹏府-92平现代风格-主卧.jpg

增加衣物储存量,并且能规划出单独的换衣区,既是整体,又有分区,合理规化主卧空间

_亚太鲲鹏府-92平现代风格-卫生间.jpg

公卫采用干湿分离设计,并且拆改为半墙,增加功能性和美观性

_亚太鲲鹏府-92平现代风格-厨房.jpg

客户喜欢封闭式厨房,在门口安装推拉门,避免油烟扩散,使客厅更容易保持干净整洁,能更好的提供隐私和独立性,西厨以及洗衣区放在中厨外侧,中西厨分割

亚泰鲲鹏府-户型图.jpg

案例设计师

赵春阳

设计师:赵春阳

从业时间:8年

设计理念:设计没有风格,设计是对生活的一种诠释。

预约设计师

算算你家装修多少钱

报名即享丰厚赠品,享半价装修

免费报价
咨询热线:400-656-9909
20190221103704574636.jpg

精品设计案例

20180612134930523248.jpg 服务号二维码.jpg