立即预约 立即预约
免费定制整装家居

免费定制整装家居

一站置家 全程无忧 一省到底
hide.png

当前位置: 首页 > 装修案例效果图 > 荣盛锦绣|意式极简

荣盛锦绣|意式极简 120平 现代简约风格效果图

收藏
案例风格 现代简约 案例户型 二居 案例面积 120平米
楼盘名称 荣盛锦绣 设计师 全案整装 案例类型 改善性住宅

设计理念:意式极简是一种追求简洁、优雅和功能性完美结合的设计理念。它通过简洁的线条、中性色调的色彩搭配、功能性至上的空间规划以及高品质材料与工艺的运用,营造出一种宁静、舒适且充满现代感的空间氛围。

客厅
第1张
第2张
第3张
餐厅
第1张
卧室
第1张
第2张
卫生间
第1张
厨房
第1张
第2张
门厅
第1张
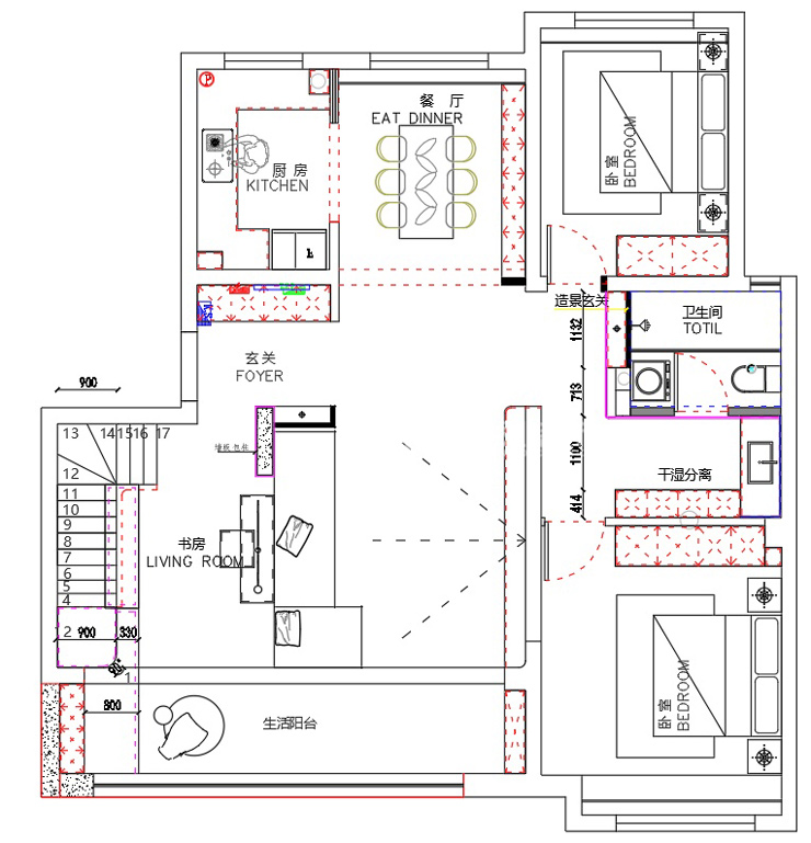
户型图
第1张
荣盛锦绣-120平-意式极简-客厅-首图.jpg 荣盛锦绣-120平-意式极简-客厅.jpg 荣盛锦绣-120平-意式极简-客厅2.jpg

客厅不仅作为会客起居之用,更是主人生活方式跟品味的展示。以白色调为主,木色辅助,搭配硬朗的线条灯使整个空间更有质感。客厅与餐厅通透连贯,视觉上延伸空间,整体空间更加饱满。

荣盛锦绣-120平-意式极简-餐厅.jpg 荣盛锦绣-120平-意式极简-次卧.jpg 荣盛锦绣-120平-意式极简-主卧.jpg

卧室与衣帽间连接,主卧的私密性更强,居品质大幅度提高。

荣盛锦绣-120平-意式极简-卫生间.jpg

卫生间说明:卫生间采用暖色调,配合浴屏分割干湿,让卫生间更大气,整体的色调给人一种温馨的感觉。

荣盛锦绣-120平-意式极简-餐厅.jpg 荣盛锦绣-120平-意式极简-厨房.jpg

厨房采用封闭厨房,空间整洁大方,隔绝油烟。

荣盛锦绣-120平-意式极简-玄关.jpg 荣盛锦绣-120平-意式极简-平面图.jpg

案例设计师

全案整装

设计师:全案整装

从业时间:12年

设计理念:只做有温度的设计

预约设计师

算算你家装修多少钱

报名即享丰厚赠品,品质装修

免费报价
咨询热线:400-656-9909
20190221103704574636.jpg

精品设计案例

20180612134930523248.jpg 服务号二维码.jpg