立即预约 立即预约
免费定制整装家居

免费定制整装家居

一站置家 全程无忧 一省到底
hide.png

当前位置: 首页 > 装修案例效果图 > 九州湾景汇|现代风格

九州湾景汇|现代风格 366平 现代简约风格效果图

收藏
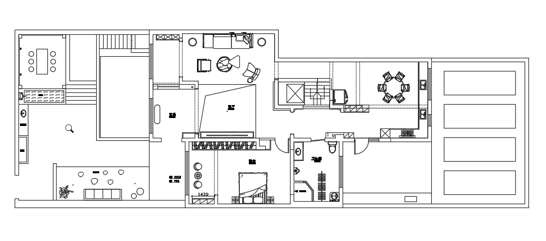
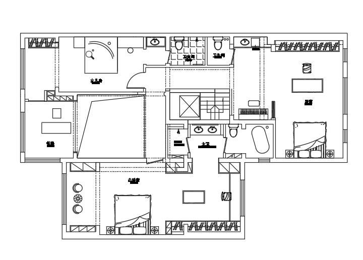
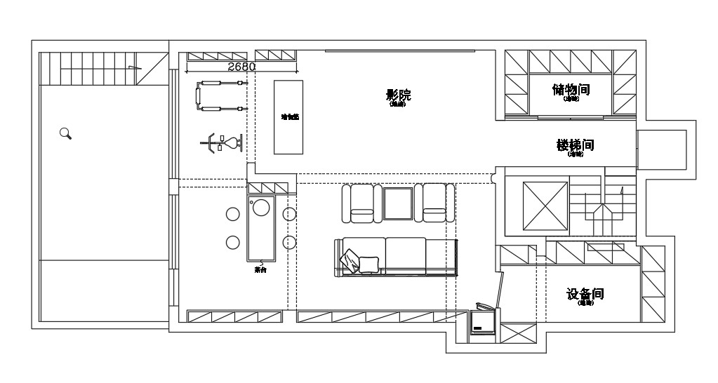
案例风格 现代简约 案例户型 四居 案例面积 366平米
楼盘名称 九州湾景汇 设计师 罗霄 案例类型 改善性住宅

设计理念:本案建筑面积366平米,根据业主需求设计了现代简约风格,整体以黑白灰为主,白色占60%为主体色,灰色占30%,黑色占10%为点缀色。当代装修最流行的风格,给人高端大气。

九洲湾景汇-366平-现代简约风格-客厅.jpg 九洲湾景汇-366平-现代简约风格-客厅 2.jpg

镂空设计,层次分明,空间大气,采用无主灯和筒灯互辅装饰,,衬托出前面米色沙发,空间感十足,边几点缀,增加趣味,镂空搭配电视背景岩板墙,高端美感兼具,黑色背板高级感,隐形门配合背景墙,门厅造型点缀,给人眼前一亮

九洲湾景汇-366平-现代简约风格-一楼卧室.jpg 九洲湾景汇-366平-现代简约风格-主卧.jpg 九洲湾景汇-366平-现代简约风格-主卧 2.jpg

大床舒眠,超大衣帽间,奢侈豪华,颜色高端,整体造型,符合现代风格,超大梳妆台,给女主人舒适化妆空间。

九洲湾景汇-366平-现代简约风格-卫生间.jpg 九洲湾景汇-366平-现代简约风格-一楼卫生间.jpg 九洲湾景汇-366平-现代简约风格-主卫.jpg

三分离的设计,符合当代生活,互补耽误,超大手盆,气派十足,浴盆改善生活品质,独立马桶。

九洲湾景汇-366平-现代简约风格-厨房.jpg 九洲湾景汇-366平-现代简约风格-厨房2.jpg 九洲湾景汇-366平-现代简约风格-厨房3.jpg

L型超大橱柜,操作空间非常大,蒸箱烤箱高柜内嵌,美观而又节省空间,双开门冰箱,储存空间十足,圆桌设计,符合中国吃饭习惯。

九洲湾景汇-366平-现代简约风格-书房.jpg 九洲湾景汇-366平-现代简约风格-儿童房 1.jpg 九洲湾景汇-366平-现代简约风格-儿童房2.jpg 九洲湾景汇-366平-现代简约风格-钢琴区.jpg 九洲湾景汇-366平-现代简约风格-庭院2.jpg 九洲湾景汇-366平-现代简约风格-庭院.jpg 九洲湾景汇-366平-现代简约风格-庭院3.jpg 九洲湾景汇-366平-现代简约风格-影视室.jpg 九洲湾景汇-366平-现代简约风格-影视室2.jpg s4-罗霄-九州湾景汇-366平米-现代简约-布局图1.png s4-罗霄-九州湾景汇-366平米-现代简约-布局图4.png s4-罗霄-九州湾景汇-366平米-现代简约-布局图2.png s4-罗霄-九州湾景汇-366平米-现代简约-布局图3.png

案例设计师

罗霄

设计师:罗霄

从业时间:17年

设计理念:唯有我的设计,方显你家的与众不同。

预约设计师

算算你家装修多少钱

报名即享丰厚赠品,品质装修

免费报价
咨询热线:400-656-9909
20190221103704574636.jpg

精品设计案例

20180612134930523248.jpg 服务号二维码.jpg