立即预约 立即预约
免费定制整装家居

免费定制整装家居

一站置家 全程无忧 一省到底
hide.png

当前位置: 首页 > 装修案例效果图 > 府城名著|现代简约风格

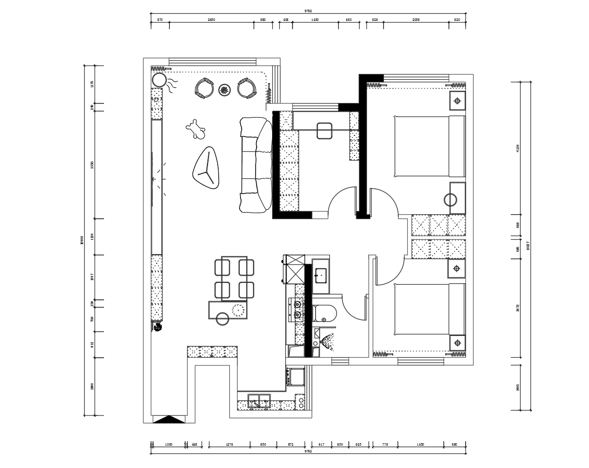
府城名著|现代简约风格 112平 现代简约风格效果图

收藏
案例风格 现代简约 案例户型 三居 案例面积 112平米
楼盘名称 府城名著 设计师 高天 案例类型 改善性住宅

设计理念:本案建筑面积112平米,根据业主需求设计了现代简约风格,以黑白灰为主,简洁干净,美观大气,再加入一些点缀色给人更加高端的感觉

客厅
第1张
第2张
第3张
第4张
餐厅
第1张
卧室
第1张
第2张
第3张
卫生间
第1张
厨房
第1张
门厅
第1张
户型图
第1张
府城名著-112平米-现代简约风格-客厅2.jpg 府城名著-112平米-现代简约风格-客厅.jpg 府城名著-112平米-现代简约风格-客厅3.jpg 府城名著-112平米-现代简约风格-客厅4.jpg

有主灯设计,光亮十足,双眼皮交圈,内嵌灯带造型,搭配内嵌电视设计,形成完整的电视背景墙,高级感爆棚,黑色沙发,形成点缀。

府城名著-112平米-现代简约风格-餐厅.jpg 府城名著-112平米-现代简约风格-次卧 1.jpg 府城名著-112平米-现代简约风格-次卧.jpg 府城名著-112平米-现代简约风格-次卧 3.jpg

1米8大床,睡眠舒适,双眼皮配吊挂主灯,点缀空间,定制衣柜,超大储物空间,定制延伸床头柜,设计爆棚。

府城名著-112平米-现代简约风格-卫生间.jpg

干湿分离的设计,给生活增加方便,分区两不耽误,半截隔断,主档淋浴溅水,提高品质。

府城名著-112平米-现代简约风格-厨房.jpg

L型超大橱柜,操作空间非常大,岛台设计增加生活品质,内嵌冰箱与定制橱柜一齐,美观好看。

府城名著-112平米-现代简约风格-门厅.jpg s4-高天-府城名著-112平米-现代简约-布局图.png

案例设计师

高天

设计师:高天

从业时间:8年

设计理念:结合客户需求把空间做到最美化

预约设计师

算算你家装修多少钱

报名即享丰厚赠品,品质装修

免费报价
咨询热线:400-656-9909
20190221103704574636.jpg

精品设计案例

20180612134930523248.jpg 服务号二维码.jpg