立即预约 立即预约
免费定制整装家居

免费定制整装家居

一站置家 全程无忧 一省到底
hide.png

当前位置: 首页 > 装修案例效果图 > 保利公园壹号|现代风格

保利公园壹号|现代风格 124平 现代简约风格效果图

收藏
案例风格 现代简约 案例户型 三居 案例面积 124平米
楼盘名称 保利公园壹号 设计师 吴勇 案例类型 改善性住宅

设计理念:本设计方案整体以现代风格,注重简洁、明了的线条和造型,通常避免过多的装饰和多余的细节。在布局上还是家具且具有一定功能性。现代风格的室内设计注重功能性、开放性和创新,追求干净、整洁、高效的空间。

客厅
第1张
第2张
餐厅
第1张
卧室
第1张
第2张
第3张
卫生间
第1张
第2张
厨房
第1张
第2张
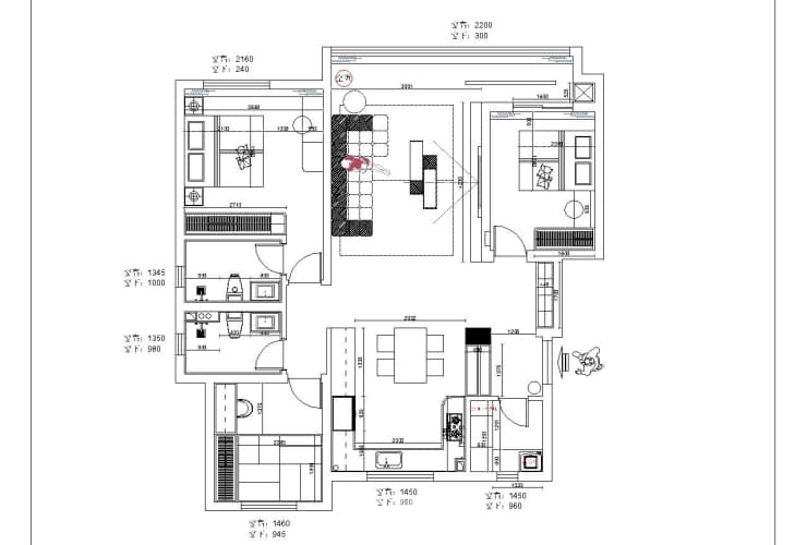
户型图
第1张
保利公园壹号 124平 现代风格客厅1.jpg 保利公园壹号 124平 现代风格 客厅2.jpg

客厅说明: 我们采用了大面积的落地窗设计,让客厅的光线充足,视野开阔。同时,为了让空间更加通透,我们选择了简约的家具摆设,如深色的沙发、木质的茶几等,既符合时尚家居的潮流,又突出了空间的宽敞感。

保利公园壹号124平 现代风格 餐厅.jpg

餐厅说明: 餐厅以其大理石餐桌和皮质质感的装饰品为特色,营造出一种现代而又奢华的氛围。餐厅的亮点在于它的开放式厨房设计,让人们在享受美食的同时,也能感受到烹饪的乐趣。

保利公园壹号 124平 现代风格 卧室1.jpg 保利公园壹号 124平 现代风格 卧室2.jpg 保利公园壹号 124平 现代风格 卧室3.jpg

卧室说明: 卧室采用了米白色和木质皮质元素为主调,整体氛围温暖且优雅。简约大方的床头背景墙,配上柔和的吊灯,营造出柔和且宁静的氛围。这样一个精致的睡眠空间,无疑是疲惫一天后最好的归宿。

保利公园壹号 124平 现代风格 卫生间2.jpg 保利公园壹号124平 现代风格 卫生间1.jpg

卫生间说明:合理规划卫生间的空间布局,充分利用每一寸空间。合理摆放洗手盆、马桶、淋浴区等设施,确保卫生间使用时宽敞、舒适。卫生间地面、墙面应选择防滑、易清洁的材质,如瓷砖、大理石等。同时,注意材质的防水性能,确保卫生间干燥、卫生。

保利公园壹号124平 现代风格 厨房1.jpg 保利公园壹号124平 现代风格 厨房2.jpg

厨房说明: 现代厨房通常采用开放式的布局,与客厅或餐厅相连,形成一个流畅的活动空间。开放式布局既方便家人之间的互动和交流,又增加了空间感和通透感。还使用吊灯、射灯和台面照明等多种灯具,提供足够明亮的照明效果,使工作区域更加清晰明亮。

保利公园壹号 124平 现代风格 户型图.jpg

案例设计师

吴勇

设计师:吴勇

从业时间:11年

设计理念:用抽象的思维去设计形象的事物

预约设计师

算算你家装修多少钱

报名即享丰厚赠品,享半价装修

免费报价
咨询热线:400-656-9909
20190221103704574636.jpg

精品设计案例

20180612134930523248.jpg 服务号二维码.jpg