立即预约 立即预约
免费定制整装家居

免费定制整装家居

一站置家 全程无忧 一省到底
hide.png

当前位置: 首页 > 装修案例效果图 > 泊岸华庭|简约美式

泊岸华庭|简约美式 96平 现代简约风格效果图

收藏
案例风格 现代简约 案例户型 二居 案例面积 96平米
楼盘名称 泊岸华庭 设计师 全案整装 案例类型 改善性住宅

设计理念:客户情况是给孩子买的学区,房子为了上学用,客户喜欢美式的家具,但是又非常不喜欢美式复杂的修饰以及过多复杂的造型,所以本案例围绕着孩子上学的功能性以及客户对于美式的理解为中心进行设计,在美式的硬装造型上进行了精简,通过软装的配饰以及家具格调的属性营造出客户喜欢的氛围

客厅
第1张
第2张
第3张
餐厅
第1张
卧室
第1张
第2张
卫生间
第1张
厨房
第1张
门厅
第1张
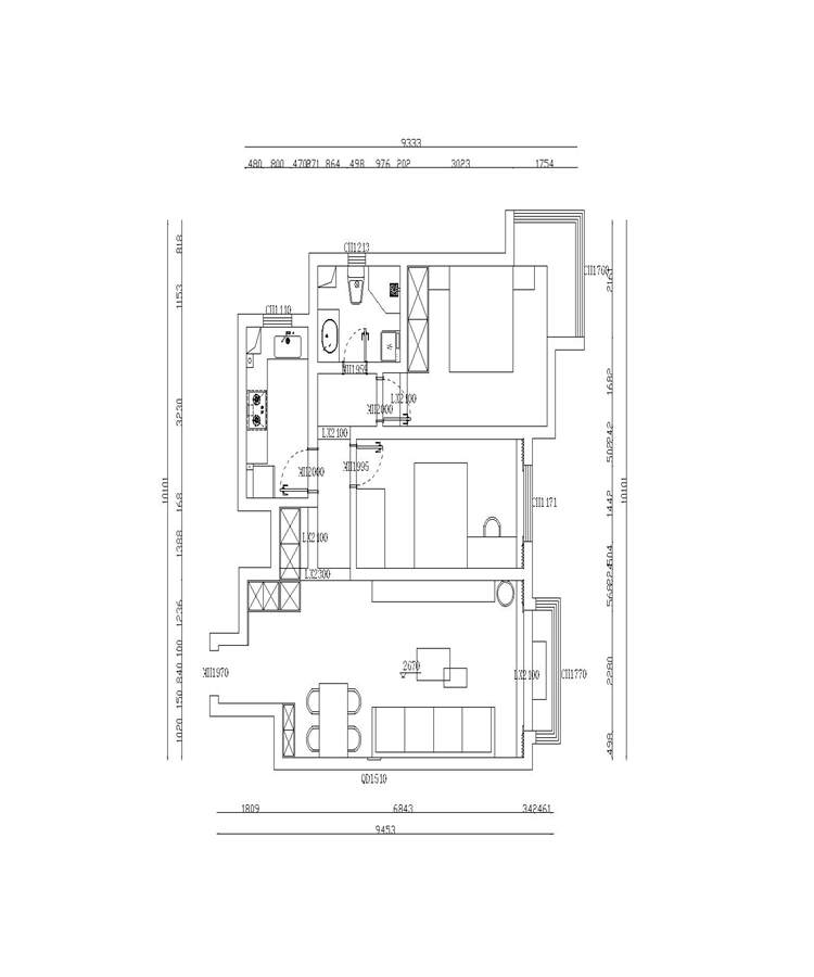
户型图
第1张
泊岸华庭-96平-简美-客厅.jpg 泊岸华庭-96平-简美-客餐厅.jpg 泊岸华庭-96平-简美-客厅首图.jpg

客厅方面对原来的二手房不合理的格局重新进行了规划,并且墙面增加了石膏线造型以及拱形门,通过简单的硬装以及后期家具的搭配做出简美的效果

泊岸华庭-96平-简美-餐厅.jpg 泊岸华庭-96平-简美-次卧.jpg 泊岸华庭-96平-简美-主卧.jpg

增加衣物储存量,并且能规划出单独的换衣区,既是整体,又有分区,合理规化主卧空间

泊岸华庭-96平-简美-卫生间.jpg

暖色干净的瓷砖配色,搭配美式的手台

泊岸华庭-96平-简美-厨房.jpg

客户不喜欢封闭式厨房,但是厨房两侧都是承重,所以保留门洞做上门套,保留厨房的通透性

泊岸华庭-96平-简美-卫生间.jpg 户型图.jpg

案例设计师

全案整装

设计师:全案整装

从业时间:9年

设计理念:成花成树非一日之功,精雕细作乃恒心所致

预约设计师

算算你家装修多少钱

报名即享丰厚赠品,享半价装修

免费报价
咨询热线:400-656-9909
20190221103704574636.jpg

精品设计案例

20180612134930523248.jpg 服务号二维码.jpg