立即预约 立即预约
免费定制整装家居

免费定制整装家居

一站置家 全程无忧 一省到底
hide.png

当前位置: 首页 > 装修案例效果图 > 中海汇德里|奶油原木

中海汇德里|奶油原木 260平 其他风格效果图

收藏
案例风格 其他 案例户型 三居 案例面积 260平米
楼盘名称 中海汇德里 设计师 白涵琦 案例类型 改善性住宅

设计理念:现代奶油风的设计,不仅仅体现在色彩与家具的选择上,更在于那些不经意间流露出的细节之美。比如,一盏造型别致的台灯,一抹恰到好处的装饰画,或是一件充满艺术感的摆件...它们都是设计师精心布置的点睛之笔,让家的每一个角落都充满了故事与情感。

客厅
第1张
第2张
餐厅
第1张
卧室
第1张
第2张
第3张
卫生间
第1张
第2张
厨房
第1张
休闲区
第1张
第2张
户型图
第1张
第2张
中海汇德里-260平-奶油原木-负一客厅.jpg 中海汇德里-260平-奶油原木-负一客厅1.jpg

客厅不仅作为会客起居之用,更是主人生活方式跟品味的展示。以木色调为主,淡色辅助,搭配硬朗的线条灯使整个空间更有质感。客厅与餐厅通透连贯,视觉上延伸空间。负一楼客厅与健身区、宠物去形成互动,在空间上延伸,整体空间更加饱满。

中海汇德里-260平-奶油原木-餐厅.jpg 中海汇德里-260平-奶油原木-儿童房.jpg 中海汇德里-260平-奶油原木-负一卧室.jpg 中海汇德里-260平-奶油原木-一楼主卧.jpg 中海汇德里-260平-奶油原木-负一卫生间.jpg 中海汇德里-260平-奶油原木-一楼卫生间.jpg

卫生间采用暖色调,配合浴屏分割干湿区,让卫生间更大气,整体的色调给人一种温馨的感觉。

中海汇德里-260平-奶油原木-厨房.jpg

厨房采用封闭厨房,空间整洁大方,隔绝油烟。

中海汇德里-260平-奶油原木-负一电玩室.jpg 中海汇德里-260平-奶油原木-负一健身区.jpg

开放电竞区,空间光线明亮,视野宽广。

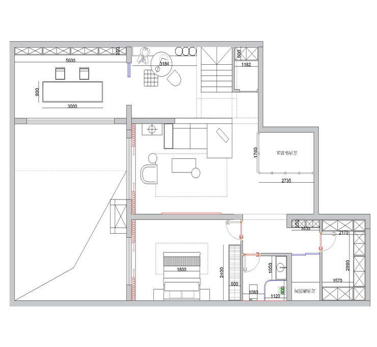
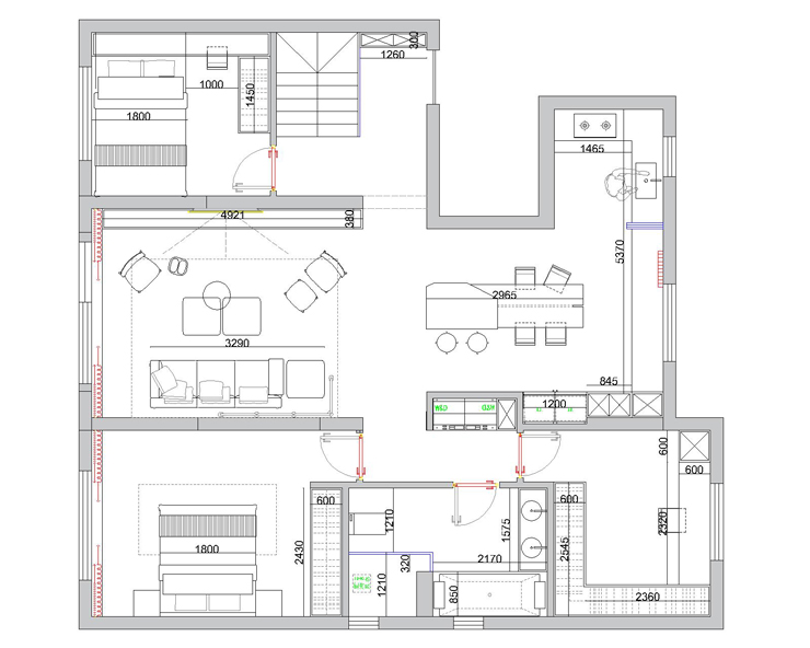
负一.jpg 一楼.jpg

案例设计师

白涵琦

设计师:白涵琦

从业时间:10年

设计理念:设计实现客户家居梦想

预约设计师

算算你家装修多少钱

报名即享丰厚赠品,享半价装修

免费报价
咨询热线:400-656-9909
20190221103704574636.jpg

精品设计案例

20180612134930523248.jpg 服务号二维码.jpg