立即预约 立即预约
免费定制整装家居

免费定制整装家居

一站置家 全程无忧 一省到底
hide.png

当前位置: 首页 > 装修案例效果图 > 鑫丰中心里

鑫丰中心里 60平 现代简约风格效果图

收藏
案例风格 现代简约 案例户型 一居 案例面积 60平米
楼盘名称 鑫丰中心里 设计师 林凤装饰设计师 案例类型 婚房

设计理念:本案整体风格是北欧风格, 典型的北欧家具搭配简约的硬装,干净明快的空间感是整体设计的主题。

客厅
第1张
第2张
第3张
餐厅
第1张
卧室
第1张
卫生间
第1张
厨房
第1张
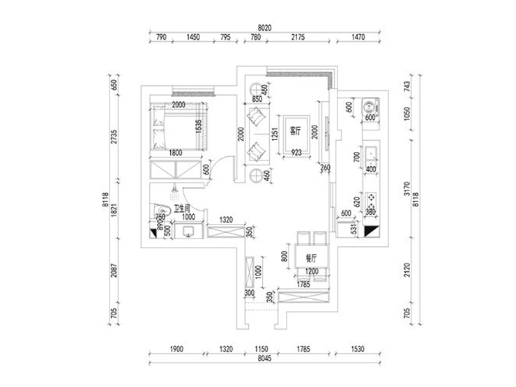
户型图
第1张
  • 案例详情

付续-鑫丰中心里-60平-北欧-客厅 (1).jpg 付续-鑫丰中心里-60平-北欧-客厅 (2).jpg 付续-鑫丰中心里-60平-北欧-客厅 (3).jpg

客厅简约的装修风格,搭配典型的北欧风格家具,在色彩上运用纯度较高的靠垫,和色彩明快的蓝色花艺做为装点,使得整体空间活泼温馨。

付续-鑫丰中心里-60平-北欧-餐厅1.jpg

餐厅干净的白色墙面搭配黑色餐桌餐椅,黑与白强烈的对比和墙面的彩色挂画刚好形成呼应。

付续-鑫丰中心里-60平-北欧-卧室.jpg

卧室整体以浅咖色为主,搭配白色床单干净又温馨。

付续-鑫丰中心里-60平-北欧-卫生间.jpg

卫生间咖色的墙砖,运用黄色光源的灯光为整体空间增加温暖的感觉

付续-鑫丰中心里-60平-北欧-厨房.jpg

厨房米咖色的橱柜搭配大花白理石纹理的瓷砖,整体厨房空间感觉大气温馨。

付续-鑫丰中心里-60平-北欧-户型图.jpg

案例设计师

林凤装饰设计师

设计师:林凤装饰设计师

从业时间:11年

设计理念:用艺术的心去生活,用生活的智慧去完善升华艺术!

预约设计师

算算你家装修多少钱

报名即享丰厚赠品,品质装修

免费报价
咨询热线:400-656-9909
20190221103704574636.jpg

精品设计案例

20180612134930523248.jpg 服务号二维码.jpg