立即预约 立即预约
免费定制整装家居

免费定制整装家居

一站置家 全程无忧 一省到底
hide.png

当前位置: 首页 > 装修案例效果图 > 辽中自建别墅|现代轻奢

辽中自建别墅|现代轻奢 700平 轻奢风格效果图

收藏
案例风格 轻奢 案例户型 别墅 案例面积 700平米
楼盘名称 辽中自建别墅 设计师 胡迪 案例类型 改善性住宅

设计理念:以现代轻奢风格为基调,温暖舒适为核心通过材质间的融合,塑造出一个充满质感又十分舒适的空间低调又不失高级,看到的第一眼,就让人沉迷。

客厅
第1张
第2张
餐厅
第1张
卧室
第1张
卫生间
第1张
厨房
第1张
书房
第1张
衣帽间
第1张
门厅
第1张
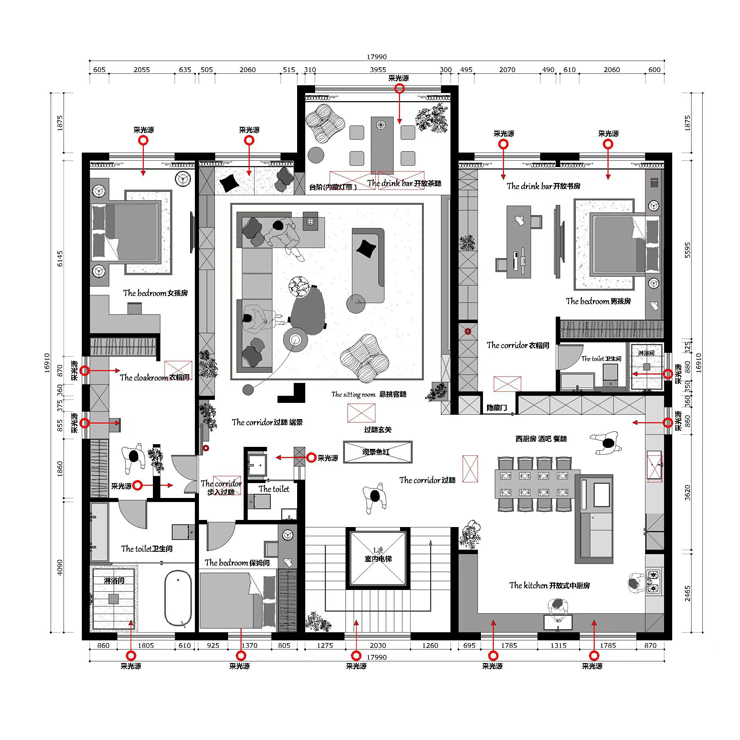
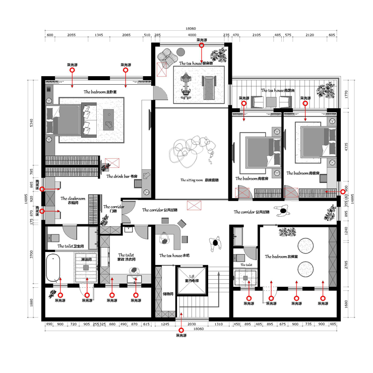
户型图
第1张
第2张
辽中自建别墅-630平米-现代轻奢-客厅电视背景墙.jpg 辽中自建别墅-630平米-现代轻奢-客厅沙发背景墙.jpg

客餐厅一体设计,连接阔景阳台,扩展家庭活动区域使用面积,并确保整个空间通风采光性俱佳。清风阳光入室,视野开阔一览无余,会客待友、休息娱乐均可轻松满足,是家人的幸福翻倍的主场。无主灯吊顶设计,最大限度不压层高。主光源、新风系统、氛围灯带层层错落,观感优美而有序。

辽中自建别墅-630平米-现代轻奢-餐厅岛台.jpg

半开放式布局方式让厨房和餐厅融为一体,打破传统餐厅的沉闷。L型厨房设计,洗切炒动线流畅灵活

辽中自建别墅-630平米-现代轻奢-主卧室.jpg

主卧空间颠覆传统黑白简约的清冷感,叠加悬浮吊顶,四周嵌入灯带,营造出内敛沉稳的气质。米灰色和咖色的搭配,让空间更有层次

辽中自建别墅-630平米-现代轻奢-卫生间.jpg

主卫延续整体空间的简约与大气,充足置物台面,满足日常收纳需求,让空间更加整洁有序,手盆采用上下悬空的浴室柜造型,减少卫生间的局促感

辽中自建别墅-630平米-现代轻奢-西厨房.jpg 辽中自建别墅-630平米-现代轻奢-书房.jpg 辽中自建别墅-630平米-现代轻奢-衣帽间.jpg 辽中自建别墅-630平米-现代轻奢-玄关.jpg

入户玄关轻奢利落,暖色调灯光配合木质纹理,温馨柔和。现代风的时尚与暖色调的温馨浑然天成,让人一进门就能感受到家的温暖,松弛周身的疲惫。鱼缸入户隔断,不仅美观,而且还能提升家居风水,透视家的温馨,为生活增添一抹亮色,每一处细节,都彰显家的主题,打造现代轻奢生活新体验。

二层户型图.jpg 一层户型图.jpg

案例设计师

胡迪

设计师:胡迪

从业时间:14年

设计理念:设计以人为本

预约设计师

算算你家装修多少钱

报名即享丰厚赠品,享半价装修

免费报价
咨询热线:400-656-9909
20190221103704574636.jpg

精品设计案例

20180612134930523248.jpg 服务号二维码.jpg