立即预约 立即预约
免费定制整装家居

免费定制整装家居

一站置家 全程无忧 一省到底
hide.png

当前位置: 首页 > 装修案例效果图 > 华发固伦府|现代风格

华发固伦府|现代风格 110平 现代简约风格效果图

收藏
案例风格 现代简约 案例户型 三居 案例面积 110平米
楼盘名称 华发固伦府 设计师 姜宇 案例类型 改善性住宅

设计理念:设计师整体设计理念:本案设计整体以白色与浅木色的进行搭配,主要是老人居住,让整体空间明亮,舒适。

客厅
第1张
第2张
餐厅
第1张
卧室
第1张
第2张
卫生间
第1张
第2张
厨房
第1张
衣帽间
第1张
门厅
第1张
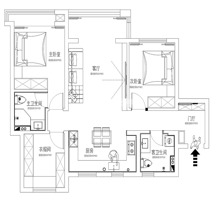
户型图
第1张
华发固伦府-110-现代风格-客厅.jpg 华发固伦府-110-现代风格-首图.jpg

客厅说明:为了让客厅更加明亮,整体色调都是以浅色为主,没有做过多的装饰,简洁实用。

华发固伦府-110-现代风格-餐厅.jpg

餐厅说明: 餐厅空间紧挨着厨房,所以整体空间与厨房颜色协调,让餐厅和厨房融合为一体。

华发固伦府-110-现代风格-次卧室.jpg 华发固伦府-110-现代风格-主卧室.jpg

卧室说明: 卧室的设计也是以浅色为主,让空间干净舒适。

华发固伦府-110-现代风格-客卫生间.jpg 华发固伦府-110-现代风格-主卫生间.jpg

卫生间说明:卫生间采用的浅米灰色砖,配合白色的浴柜,让小空间显得更加宽敞和明亮。

华发固伦府-110-现代风格-厨房.jpg

厨房说明:本案是开放式厨房,浅色的橱柜和浅色的瓷砖搭配,让厨房空间干净整洁。

华发固伦府-110-现代风格-衣帽间.jpg 华发固伦府-110-现代风格-门厅.jpg 华发固伦府-110-现代风格-平面图.jpg

案例设计师

姜宇

设计师:姜宇

从业时间:18年

设计理念:适合人居舒适的环境设计才是好设计

预约设计师

算算你家装修多少钱

报名即享丰厚赠品,品质装修

免费报价
咨询热线:400-656-9909
20190221103704574636.jpg

精品设计案例

20180612134930523248.jpg 服务号二维码.jpg