立即预约 立即预约
免费定制整装家居

免费定制整装家居

一站置家 全程无忧 一省到底
hide.png

当前位置: 首页 > 装修案例效果图 > 中海汇德里|现代简约

中海汇德里|现代简约 127平 现代简约风格效果图

收藏
案例风格 现代简约 案例户型 三居 案例面积 127平米
楼盘名称 中海汇德里 设计师 毛娇 案例类型 改善性住宅

设计理念:1.客户是已婚小两口、这套房子用作改善生活,给孩子打造美好成长环境用。

客厅
第1张
第2张
餐厅
第1张
卧室
第1张
第2张
第3张
第4张
卫生间
第1张
第2张
厨房
第1张
书房
第1张
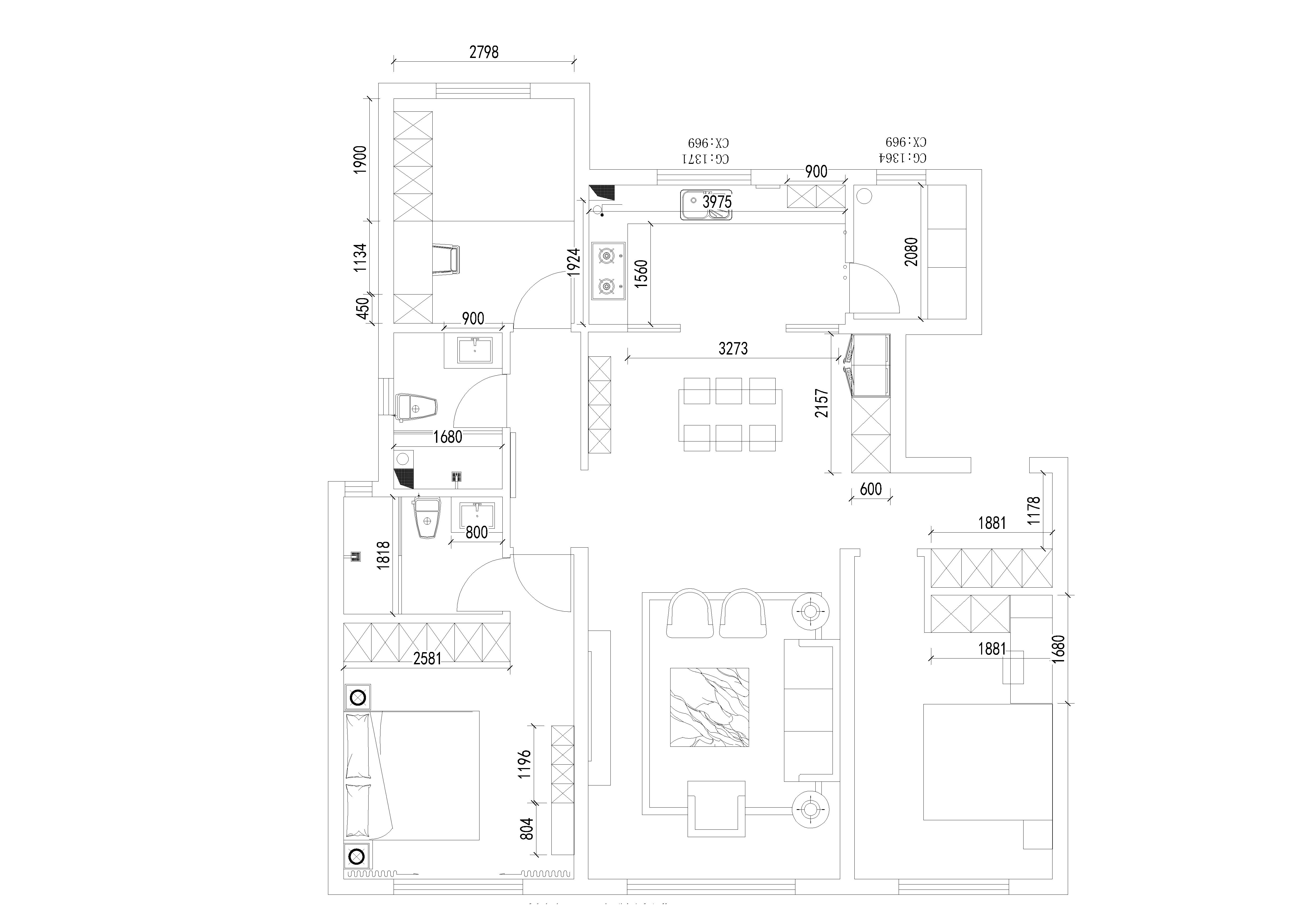
户型图
第1张
中海汇德里-127-现代风-客厅.jpg 中海汇德里-127-现代风-主客厅.jpg

客厅现代简约风格的色系搭配应避免繁琐,以整体简约为主,同时蕴含含蓄的韵味。白色、灰色等简约色调常用作主色,搭配少量亮色点缀,例如棕色,营造出明亮、通透的氛围。

中海汇德里-127-现代风-客餐厅.jpg

餐厅及厨房说明:将餐厅和厨房巧妙用拉门进行区域划分出来,增加了空间的灵活性,餐边柜满足了平常的实用需求,又融入了整个用餐空间,让其变得和谐统一。厨房设计色调统一,橱柜和台面的设计增加厨房的储物和操作空间,让整个空间变得实用便捷。

中海汇德里-127-现代风-客卧.jpg 中海汇德里-127-现代风-南次卧.jpg 中海汇德里-127-现代风-主卧室.jpg 中海汇德里-127-现代风-主卧室-首图.jpg

卧室说明:运用了咖色与奶白色相结合,不采用过多的装饰,设计简化,不运用吊顶,色彩方面选择了浅色调,如米黄、白色等,可以从视觉上增大空间感,避免过于复杂。

中海汇德里-127-现代风-次卫生间.jpg 中海汇德里-127-现代风-主卫生间.jpg

卫生间说明:整体以灰色瓷砖为主,注重功能性与美观性的完美结合。以简洁的线条和清新的色调为主,营造轻松愉悦的卫浴空间。采用防水耐用材料,确保长期使用的舒适与安全。

中海汇德里-127-现代风-厨房.jpg 中海汇德里-127-现代风-厨房.jpg 平面布置图.jpg

案例设计师

毛娇

设计师:毛娇

从业时间:15年

设计理念:形式追随功能

预约设计师

算算你家装修多少钱

报名即享丰厚赠品,品质装修

免费报价
咨询热线:400-656-9909
20190221103704574636.jpg

精品设计案例

20180612134930523248.jpg 服务号二维码.jpg