立即预约 立即预约
免费定制整装家居

免费定制整装家居

一站置家 全程无忧 一省到底
hide.png

当前位置: 首页 > 装修案例效果图 > 圣水苑|现代风格

圣水苑|现代风格 125平 现代简约风格效果图

收藏
案例风格 现代简约 案例户型 二居 案例面积 125平米
楼盘名称 圣水苑 设计师 孟凡玉 案例类型 改善性住宅

设计理念:设计师整体设计理念:本案为现代简约风格,整体设计主要以黑白灰为主,颜色比较素雅,线条比较流畅,打造出现代人居住的舒适空间。

客厅
第1张
第2张
第3张
餐厅
第1张
第2张
卧室
第1张
第2张
卫生间
第1张
厨房
第1张
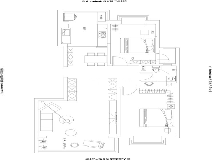
户型图
第1张
孟凡玉原创设计-圣水苑-客餐厅1.jpg 孟凡玉原创设计-圣水苑-客餐厅2.jpg 孟凡玉原创设计-圣水苑-客餐厅3.jpg

客厅设计说明:客厅吊棚以无主灯为主,磁吸轨道线条增加了空间延伸感,电视背景以柜子为主,既满足了储物功能,同时也增加了空间的美感,沙发背景用了暖色系护墙板,使空间多了些许温馨。

孟凡玉原创设计-圣水苑-客餐厅.jpg 孟凡玉原创设计-圣水苑-客餐厅 .jpg

餐厅设计说明:餐厅顶棚延续客厅设计,都采用了无主灯的设计,增添了灯光效果,餐边柜玻璃门与旁边电器储物柜相结合设计感与功能性并存

孟凡玉原创设计-圣水苑-次卧室.jpg 孟凡玉原创设计-圣水苑-主卧室.jpg

卧室设计说明:主卧室整体色调以黑白灰为主,通顶的衣柜,显举架比较高,抽象的画作为空间增添了趣味性,主灯与无主灯相结合增添了空间的氛围感。

孟凡玉原创设计-圣水苑-卫生间.jpg

卫生间设计说明:卫生间瓷砖采用1200*600的大板砖,增添了空间的高度,素色瓷砖看起来非常柔和,浴室柜采用定制岩板面,看起来比较有质感,智能镜柜为空间增添了时尚感。

孟凡玉原创设计-圣水苑-厨房.jpg

厨房设计说明:厨房橱柜采用AB版的设计,上面白色干净整洁,下柜灰色很有质感,台面白色过度,分割了整体空间。

圣水苑.jpg

案例设计师

孟凡玉

设计师:孟凡玉

从业时间:10年

设计理念:好的设计不只是美,它会让人产生美的 感受,它与生活息息相关

预约设计师

算算你家装修多少钱

报名即享丰厚赠品,品质装修

免费报价
咨询热线:400-656-9909
20190221103704574636.jpg

精品设计案例

20180612134930523248.jpg 服务号二维码.jpg