立即预约 立即预约
免费定制整装家居

免费定制整装家居

一站置家 全程无忧 一省到底
hide.png

当前位置: 首页 > 装修案例效果图 > 华润置地御华府|现代简约

华润置地御华府|现代简约 140平 现代简约风格效果图

收藏
案例风格 现代简约 案例户型 三居 案例面积 140平米
楼盘名称 华润置地御华府 设计师 罗霄 案例类型 改善性住宅

设计理念:设计说明:整体空间结合地面,立面,天空相呼应,结合装修风格,整体氛围感更强。

客厅
第1张
第2张
餐厅
第1张
卧室
第1张
第2张
卫生间
第1张
第2张
厨房
第1张
书房
第1张
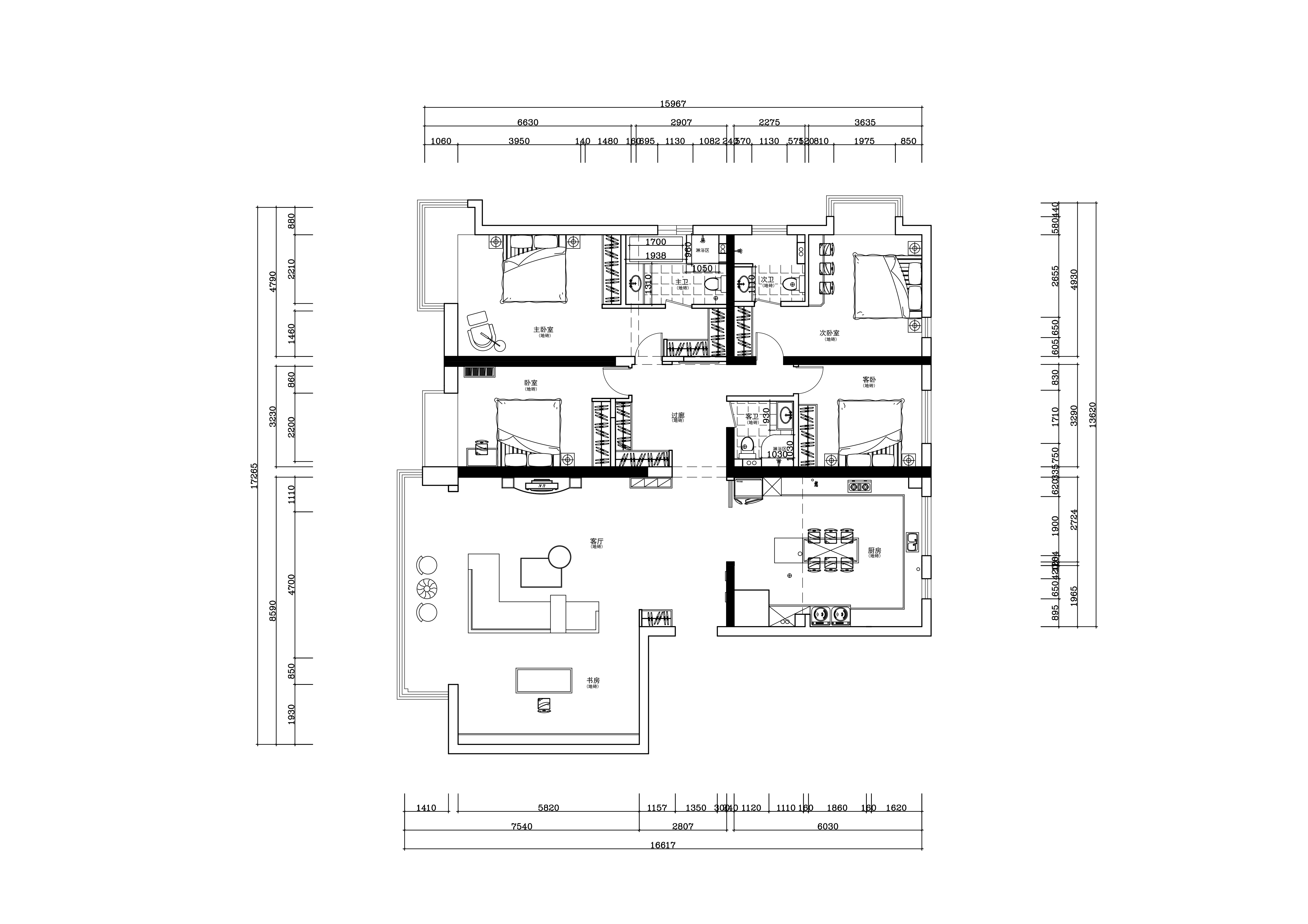
户型图
第1张
S4-华润置地御华府-140平-现代简约-客厅 (2).jpg S4-华润置地御华府-140平-现代简约-客厅.jpg

客厅说明:客厅保留大开间,既能满足通风采光又能增加视野的开阔感。

S4-华润置地御华府-140平-现代简约-餐厅.jpg

餐厅说明:餐桌位置放置于厨房中间,与客厅相呼应,增加岛台,提升整体厨房档次。

S4-华润置地御华府-140平-现代简约-主卧 (2).jpg S4-华润置地御华府-140平-现代简约-主卧.jpg

卧室设计说明:卧室整体设计以收纳为主,保留原有大空间,后期利用软装搭配来提升卧室效果。

S4-华润置地御华府-140平-现代简约-卫生间 (2).jpg S4-华润置地御华府-140平-现代简约-卫生间.jpg

卫生间说明: 卫生间采用大手盆台面设计,实用的同时增加了美感,也不淋浴区以及马桶的摆放。

S4-华润置地御华府-140平-现代简约-餐厅.jpg

厨房:厨房位置占用部分书房空间,扩大厨房过道空间,为餐桌岛台摆放预留空间。

S4-华润置地御华府-140平-现代简约-书房.jpg 御景新世界-267平-极简风格-布置图无水印.jpg

案例设计师

罗霄

设计师:罗霄

从业时间:17年

设计理念:唯有我的设计,方显你家的与众不同。

预约设计师

算算你家装修多少钱

报名即享丰厚赠品,享半价装修

免费报价
咨询热线:400-656-9909
20190221103704574636.jpg

精品设计案例

20180612134930523248.jpg 服务号二维码.jpg