立即预约 立即预约
免费定制整装家居

免费定制整装家居

一站置家 全程无忧 一省到底
hide.png

当前位置: 首页 > 装修案例效果图 > 龙湖双珑原著|新中式

龙湖双珑原著|新中式 130平 新中式风格效果图

收藏
案例风格 新中式 案例户型 三居 案例面积 130平米
楼盘名称 龙湖双珑原著 设计师 慈英雪 案例类型 改善性住宅

设计理念:设计理念:新中式风格的室内设计,是一种将传统中式文化与现代审美理念相结合的设计风格。在空间设计中既传承了传统中华文化的精髓,又融入现代生活的实际需求,打造出一个既具文化底蕴又不失去现代感的生活空间。

客厅
第1张
第2张
第3张
卧室
第1张
第2张
卫生间
第1张
第2张
厨房
第1张
书房
第1张
衣帽间
第1张
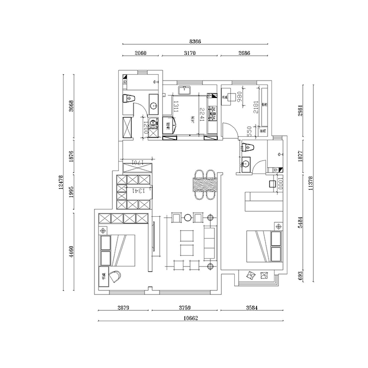
户型图
第1张
慈英雪设计丨龙湖双珑原著-130平-新中式风格-电视背景墙.jpg 慈英雪设计丨龙湖双珑原著-130平-新中式风格-沙发背景墙.jpg 慈英雪设计丨龙湖双珑原著-130平-新中式风格-客厅.jpg

客厅说明:客厅采用了开放式设计连接了餐厅,形成了合理的动线设计和流畅的活动空间,在家具方面保留了新中式的家具,与现代设计手法相碰撞,创造了既具有东方韵味又符合现代生活节奏的空间。

慈英雪设计丨龙湖双珑原著-130平-新中式风格-次卧 .jpg 慈英雪设计丨龙湖双珑原著-130平-新中式风格-主卧.jpg

卧室说明:卧室的氛围以温润为主,主卧柜体采用木色与白色拼接色,搭配新中式风格的家具既保留了中式的沉稳又营造明亮氛围,而次卧选用了百搭的现代风格的家具,方便亲朋好友的到来,搭配低饱和度色系的布艺软装,提供了安静的入睡氛围,展示了一个轻松无压的休息区。

慈英雪设计丨龙湖双珑原著-130平-新中式风格-主卫 .jpg 慈英雪设计丨龙湖双珑原著-130平-新中式风格-次卫.jpg

卫生间说明:柜体统一采用哑光木色,与白色岩板实现一体式效果,空间呈现出哑光质感,采用壁龛的设计增加了卫生间的储物空间搭配黑灰色系的洁具,简洁大方又充分考虑客户的居住体验

慈英雪设计丨龙湖双珑原著-130平-新中式风格-厨房 .jpg

厨房说明:新中式风格的厨房,既要有古典的高贵和内敛,又要有现代的简洁与时尚。厨房的设计采用了高贵典雅的木色橱柜、白色的墙面瓷砖和台面等,当明亮的灯光照射下来,给人一种朴实的空间感。大型的上下储物柜让厨房的空间利用率更高,增加了厨房的收纳能力。这种新中式厨房设计,既沉淀了现代社会里的浮躁,又没有古典主义的深沉,结合的恰到好处,彰显了一种真正的大家风范。

慈英雪设计丨龙湖双珑原著-130平-新中式风格-书房 .jpg

书房说明:书房重在营造一种宁静的氛围,通过对书柜不同的格局设计,以及房间的搭配,将素雅儒静的美学气质完美融入空间中,将对称的模式运用到新中式书房中,搭配现代风格的家具,使得整个空间统一协调又充满意蕴。

慈英雪设计丨龙湖双珑原著-130平-新中式风格-主卧衣帽间.jpg 户型图.jpg

案例设计师

慈英雪

设计师:慈英雪

从业时间:8年

设计理念:做有情感的设计,做符合生活方式的设计,无限优化生活空间

预约设计师

算算你家装修多少钱

报名即享丰厚赠品,享半价装修

免费报价
咨询热线:400-656-9909
20190221103704574636.jpg

精品设计案例

20180612134930523248.jpg 服务号二维码.jpg