立即预约 立即预约
免费定制整装家居

免费定制整装家居

一站置家 全程无忧 一省到底
hide.png

当前位置: 首页 > 装修案例效果图 > 浦江御景湾|现代简约

浦江御景湾|现代简约 155平 现代简约风格效果图

收藏
案例风格 现代简约 案例户型 三居 案例面积 155平米
楼盘名称 浦江御景湾 设计师 李雪 案例类型 改善性住宅

设计理念:设计师整体设计理念:本案以现代元素为主,采用理石质感的石材,搭配暖灰色木质定制类家具,配以亚麻质感的软装饰品,打造一种现代时尚简洁的居住空间

客厅
第1张
第2张
第3张
第4张
餐厅
第1张
卧室
第1张
第2张
卫生间
第1张
厨房
第1张
门厅
第1张
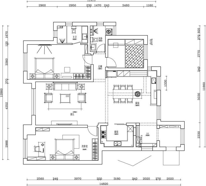
户型图
第1张
浦江御景湾150-现代简约-客厅图3.jpg 浦江御景湾150-现代简约-客厅图 (2).jpg 浦江御景湾150-现代简约-客厅图.jpg 浦江御景湾150-现代简约-客厅图4.jpg

客厅说明:客厅以简洁的手法设计,简单的吊顶线条,搭配暖灰色理石纹理瓷砖,墙壁局部用了墙板体现了质感和颜色点缀,丰富了层次的变化,背景墙通过大板砖以及格栅展示,家具采用了当下流行的现代极简风格家具,简洁大气。

浦江御景湾150-现代简约-餐厅图.jpg

餐厅说明:餐厅采用了中西厨表现手法,同时做了大中岛,体现了主人对生活的品质的要求,以及使整个餐区看起来更上档次和视觉更宽广,也不会显得杂乱,理石面的餐台更便于日常生活中打理,餐灯取餐桌中心,把区域进行了合理的划分。

浦江御景湾150-现代简约-次卧室图.jpg 浦江御景湾150-现代简约-主卧室图.jpg

主卧室说明:主卧室功能性非常齐全,衣柜设计更大的收纳量,满足日常物品的储藏,家里更整洁,床头采用了跟客厅同样的色块方式进行点缀,增加了一丝活力,床以舒适的布艺材质为主,简单舒适。

浦江御景湾150-现代简约-卫生间图.jpg

卫生间说明:洗手间采用了暖灰色砖的设计,整体体现出来卫生间的高档感,洗手台根据空间尽可能选用了大的,储物量更多,空间更整洁。

浦江御景湾150-现代简约-厨房.jpg 浦江御景湾150-现代简约-门厅图.jpg 画图  Model (1).jpg

案例设计师

李雪

设计师:李雪

从业时间:6年

设计理念:设计源于生活,而又升华于生活。

预约设计师

算算你家装修多少钱

报名即享丰厚赠品,品质装修

免费报价
咨询热线:400-656-9909
20190221103704574636.jpg

精品设计案例

20180612134930523248.jpg 服务号二维码.jpg